KMMビル
| 物件名 | KMMビル | ||
|---|---|---|---|
| 住所 | 福岡県北九州市小倉北区浅野2-14-1 | ||
| 最寄駅 | |||
| 竣工年 | 1979年3月 | ||
| 規模 | 地上8階 地下1階 | ||
| 空調 | 個別空調 | OAフロア | OAフロア |
| EV | 4 基 | トイレ | 男女別・室外 |
| 駐車場 | 有り | 24時間使用 | 使用可 |
| 耐震 | 新耐震基準相当 | 機械警備 | 有り |
募集概要
| 階数 |
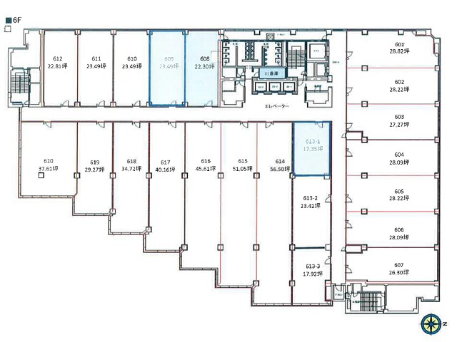
6階
611
|
|---|---|
| 坪数 | 23.48坪 |
| 用途 | 事務所 |
| 月額(賃料+共益費) (税別) | 246,540円 |
| 坪単価(賃料+共益費) (税別) | 10,500円/坪 |
| 賃料(税別) |
176,100円 (7,500円/坪) |
| 共益費(税別) |
70,440円 (3,000円/坪) |
| 敷金 | 8ヶ月 |
| 礼金 | 無し |
| 償却 | 無し |
| 入居可能日 | 2026年7月 |
| 空室確認日 | 2026/05/13 |
その他空室情報
| 階数 | 坪数 |
賃料 (税別) |
共益費 (税別) |
敷金・保証金 | 入居日 | 詳細 |
お気に入り 追加 |
|---|---|---|---|---|---|---|---|
|
B1階
8
|
20.73坪 |
103,650円 (5,000円/坪) |
62,190円 (3,000円/坪) |
8ヶ月 | 相談 |
|
|
|
B1階
9
|
21.89坪 |
109,450円 (5,000円/坪) |
65,670円 (3,000円/坪) |
8ヶ月 | 即日 |
|
|
|
B1階
10
|
25.9坪 |
129,500円 (5,000円/坪) |
77,700円 (3,000円/坪) |
8ヶ月 | 相談 |
|
|
|
B1階
5・6
|
37.22坪 |
186,100円 (5,000円/坪) |
111,660円 (3,000円/坪) |
8ヶ月 | 即日 |
|
|
|
2階
208
|
22.98坪 |
172,350円 (7,500円/坪) |
68,940円 (3,000円/坪) |
8ヶ月 | 即日 |
|
|
|
2階
213-215
|
122.82坪 |
921,150円 (7,500円/坪) |
368,460円 (3,000円/坪) |
8ヶ月 | 即日 |
|
|
|
3階
308
|
23.31坪 |
174,825円 (7,500円/坪) |
69,930円 (3,000円/坪) |
8ヶ月 | 即日 |
|
|
|
3階
310
|
23.46坪 |
175,950円 (7,500円/坪) |
70,380円 (3,000円/坪) |
8ヶ月 | 即日 |
|
|
|
5階
512
|
22.89坪 |
171,675円 (7,500円/坪) |
68,670円 (3,000円/坪) |
8ヶ月 | 即日 |
|
|
|
5階
516
|
45.6坪 |
342,000円 (7,500円/坪) |
136,800円 (3,000円/坪) |
8ヶ月 | 相談 |
|
|
|
5階
513-514
|
115.69坪 |
867,675円 (7,500円/坪) |
347,070円 (3,000円/坪) |
8ヶ月 | 即日 |
|
|
|
6階
610
|
23.48坪 |
176,100円 (7,500円/坪) |
70,440円 (3,000円/坪) |
8ヶ月 | 即日 |
|
|
|
6階
613-1・2
|
40.75坪 |
305,625円 (7,500円/坪) |
122,250円 (3,000円/坪) |
8ヶ月 | 即日 |
|
|
|
6階
608
|
22.29坪 |
167,175円 (7,500円/坪) |
66,870円 (3,000円/坪) |
8ヶ月 | 即日 |
|
|
|
6階
614.615
|
107.53坪 |
806,475円 (7,500円/坪) |
322,590円 (3,000円/坪) |
8ヶ月 | 即日 |
|
|
|
6階
607
|
23.48坪 |
176,100円 (7,500円/坪) |
70,440円 (3,000円/坪) |
8ヶ月 | 2026年10月 |
|
|
|
7階
712
|
22.76坪 |
170,700円 (7,500円/坪) |
68,280円 (3,000円/坪) |
8ヶ月 | 即日 |
|
|
|
7階
708
|
22.25坪 |
166,875円 (7,500円/坪) |
66,750円 (3,000円/坪) |
8ヶ月 | 即日 |
|
|









