東京建物博多ビル

物件名 東京建物博多ビル
住所 福岡県福岡市博多区博多駅前1-4-4
最寄駅
竣工年 1985年6月
規模 地上12階 地下1階
空調 個別空調 OAフロア OAフロア
EV 3 基 トイレ 男女別・室外
駐車場 有り 24時間使用 使用可
耐震 新耐震基準 機械警備 有り

募集概要

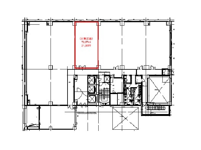
階数 3階
坪数 21.95坪
用途 事務所
月額(賃料+共益費) (税別) 相談
坪単価(賃料+共益費) (税別) 相談
賃料(税別) 相談
共益費(税別) 賃料に含む
敷金 15ヶ月
礼金 無し
償却 無し
入居可能日 2026年4月
空室確認日 2025/10/20

物件詳細PDF

  • お客様用
  • 業者様用

お問い合わせはこちら

更に詳細な資料情報をご希望の方はこちら

がついているものは必須項目です
物件名 東京建物博多ビル 3階 21.95坪
物件住所 福岡県福岡市博多区博多駅前1-4-4
■お問合せ内容
お問合せ内容
備考欄
■ご希望条件について教えてください
立地
ご希望の面積 ※1㎡=0.3025坪
ご希望の面積がお決まりの方は単位を選んでからご記入ください
ご予算感 ※共益費込みの月額賃料(税別)
ご予算感がお決まりの方は単位を選んでからご記入ください
ご入居希望時期
その他のご質問・ご要望など
■物件探しの目的についてお教えください
用途
業態(店舗選択のみ)
その他用途
目的
その他目的
■物件探しの目的についてお教えください
貴社名 ご担当者名  
電話番号
メールアドレス メールアドレス
(再入力)
郵便番号
都道府県/市区町村/番地
建物名/階数
確認画面へ進む
博多の貸会議室 | BMT会議室

同エリアの物件

  • グランドタワー西博多ビル 福岡県福岡市博多区住吉4-29-22 渡辺通

  • ヴィラージュ博多駅前オフィス 福岡県福岡市博多区博多駅前4-37-2 博多

  • 第十四岡部ビル 福岡県福岡市博多区博多駅前1-7-22 祇園

  • 大博多ビル 福岡県福岡市博多区博多駅前2-20-1 祇園

Copyright(C) Quick Consulting Co.,LTD. All right reserved.