三交桑名駅前ビル
| 物件名 | 三交桑名駅前ビル | ||
|---|---|---|---|
| 住所 | 三重県桑名市寿町2-31-12 | ||
| 最寄駅 | |||
| 竣工年 | 1990年3月 | ||
| 規模 | 地上3階 | ||
| 空調 | 個別空調 | OAフロア | OAフロア / タイルカーペット / スケルトン / Pタイル |
| EV | 1 基 | トイレ | 男女別・室外 |
| 駐車場 | 無し | 24時間使用 | 使用可 |
| 耐震 | 新耐震基準 | 機械警備 | 有り |
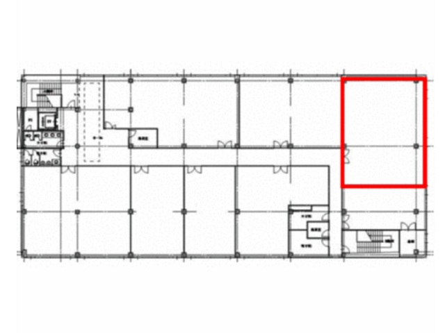
募集概要
| 階数 |
3階
ハ区画
|
|---|---|
| 坪数 | 39.36坪 |
| 用途 | 事務所 |
| 月額(賃料+共益費) (税別) | 354,240円 |
| 坪単価(賃料+共益費) (税別) | 9,000円/坪 |
| 賃料(税別) |
295,200円 (7,500円/坪) |
| 共益費(税別) |
59,040円 (1,500円/坪) |
| 敷金 | 12ヶ月 |
| 礼金 | 無し |
| 償却 | 無し |
| 入居可能日 | 即日 |
| 空室確認日 | 2026/03/13 |









