こだわり条件で再検索

キーワード
坪数
(面積)
賃料+共益費
賃料+共益費
(坪当たり)
最寄駅
徒歩
築年数




用途





快適


安全


[]を含むの賃貸オフィス・賃貸事務所 6249 棟 ( 15393 区画)

物件No 0030718
住所 広島県福山市東桜町1-21
最寄駅
竣工年 1991年5月
規模 地上11階 地下1階
階数 坪数 賃料+共益費
(坪単価)
敷金・保証金 用途 入居日 詳細 お気に入り
追加
8階
806
74.57坪 相談 6ヶ月
事務所
即日 お問合せ お気に入り追加
8階
801
64.93坪 相談 6ヶ月
事務所
即日 お問合せ お気に入り追加

担当者のコメント

文化施設内にある事務所兼店舗物件
JR山陽本線「福山駅」より徒歩約7分の立地です。
1991年5月竣工の新耐震基準を満たした建物です。周辺には、市役所や郵便局、金融機関が揃っています。館内はホールやカルチャー教室があります。設備は、個別空調、エレベーター3基設置しております。

物件No 0001610
住所 山口県下関市細江町1-2-10
最寄駅
竣工年 1991年5月
規模 地上9階 地上1階
階数 坪数 賃料+共益費
(坪単価)
敷金・保証金 用途 入居日 詳細 お気に入り
追加
8階 13.89坪 相談 相談
事務所
即日 お問合せ お気に入り追加
8階 22.18坪 相談 相談
事務所
即日 お問合せ お気に入り追加
9階 91.78坪 相談 相談
事務所
即日 お問合せ お気に入り追加

担当者のコメント

山口にあるエストラスト第2ビルは、1991年5月に建てられた地上9階地上1階の建物です。新耐震構造かつ機械警備もあり安心です。また、24時間の使用可能となっています。事務所をお探しの方にはぴったりの物件です。
最寄り駅はJR山陽本線下関駅、JR山陰本線下関駅、JR鹿児島本線下関駅と交通の便の良い立地です。個別空調、エレベータ2基を完備しています。また駐車場も完備しています。

物件No 0065553
住所 山口県下関市細江町1-2-12
最寄駅
竣工年 1991年7月
規模 地上7階
階数 坪数 賃料+共益費
(坪単価)
敷金・保証金 用途 入居日 詳細 お気に入り
追加
1階 49.91坪 449,190円(税別)
(9,000円/坪)
6ヶ月
事務所
2026年6月 お問合せ お気に入り追加
3階 76.23坪 609,840円(税別)
(8,000円/坪)
6ヶ月
事務所
2026年6月 お問合せ お気に入り追加
4階 76.23坪 609,840円(税別)
(8,000円/坪)
6ヶ月
事務所
2026年6月 お問合せ お気に入り追加
6階 76.23坪 609,840円(税別)
(8,000円/坪)
6ヶ月
事務所
2026年6月 お問合せ お気に入り追加

担当者のコメント

山口にあるエストラスト第3ビルは、1991年7月に建てられた地上7階の建物です。新耐震構造で安心です。事務所をお探しの方にはぴったりの物件です。
最寄り駅はJR山陰本線下関駅です。OAフロア、個別空調、エレベータ1基を完備しています。また機械式の駐車場も完備しています。

物件No 0041652
住所 大阪府吹田市江坂町1-23-32
最寄駅
竣工年 1988年
規模 地上8階
階数 坪数 賃料+共益費
(坪単価)
敷金・保証金 用途 入居日 詳細 お気に入り
追加
7階 11.88坪 191,060円(税別)
(16,082円/坪)
2ヶ月
事務所
即日 お問合せ お気に入り追加

担当者のコメント

大阪メトロ御堂筋線江坂駅徒歩1分の好立地オフィスビル。
1階、共用部、貸室全てリニューアル、リノベーションオフィスとなります。
御堂筋江坂駅からの視認性も高く、来客型業種もご入居ご相談できます。

物件No 0032804
住所 愛知県名古屋市中区丸の内2-1-37
最寄駅
竣工年 2002年7月
規模 地上9階 地下1階
階数 坪数 賃料+共益費
(坪単価)
敷金・保証金 用途 入居日 詳細 お気に入り
追加
5階
C
15.56坪 186,000円(税別)
(11,954円/坪)
6ヶ月
事務所
2026年3月 お問合せ お気に入り追加

担当者のコメント

伏見通沿いの築浅ビル。丸の内駅から徒歩4分の好立地です。
個別空調・機械警備・OAフロアと快適なオフィス環境が整っております。
周辺には郵便局やコンビニ、飲食店も多く立ち並び利便性の高い物件です。

物件No 0027714
住所 千葉県柏市末広町5-16
最寄駅
竣工年 1975年8月
規模 地上5階
階数 坪数 賃料+共益費
(坪単価)
敷金・保証金 用途 入居日 詳細 お気に入り
追加
2階
B
58.06坪 697,680円(税別)
(12,017円/坪)
10ヶ月
事務所
店舗
2026年5月 お問合せ お気に入り追加

担当者のコメント

エスパス柏は柏駅西口から徒歩3分のオフィスビルです。水回りは共用部分にあり、貸室形状が長方形で使いやすくオススメです。事務所利用でのみお受け入れ可能でございます。

物件No 0065184
住所 広島県広島市中区東白島町19-73
最寄駅
竣工年 1995年5月
規模 地上8階
階数 坪数 賃料+共益費
(坪単価)
敷金・保証金 用途 入居日 詳細 お気に入り
追加
2階 34.4坪 240,000円(税別)
(6,977円/坪)
6ヶ月
事務所
店舗
即日 お問合せ お気に入り追加

担当者のコメント

広島市中区エリアにあるエスペランス城北は、1995年5月に建てられた地上8階の建物です。新耐震構造で安心です。また、24時間の使用可能となっています。事務所、店舗をお探しの方にはぴったりの物件です。
最寄り駅は広電9系統(白島線)白島駅、アストラムライン城北駅、広電9系統(白島線)家庭裁判所前駅と交通の便の良い立地です。最短の駅からは徒歩4分と駅から近いことも魅力です。個別空調、エレベータ1基を完備しています。また平置きの駐車場も完備しています。

物件No 0043918
住所 東京都渋谷区神宮前3-25-14
最寄駅
竣工年 1984年11月
規模 地上8階
階数 坪数 賃料+共益費
(坪単価)
敷金・保証金 用途 入居日 詳細 お気に入り
追加
2階
セットアップ 申込有
54.63坪 相談 相談
事務所
2026年2月 お問合せ お気に入り追加
3階
セットアップ 申込有
57.3坪 相談 相談
事務所
即日 お問合せ お気に入り追加
4階
セットアップ
57.3坪 相談 相談
事務所
即日 お問合せ お気に入り追加

担当者のコメント

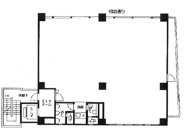
エスラ原宿は、明治通りに面したオフィスビルです。内装・家具付きセットアップ仕様となっており、必要隻数に合わせた4パターンの選択可能です。周辺は主にアパレル等物販店舗も多く関連事務所が集結しています。

物件No 0058083
住所 神奈川県横浜市中区南仲通2-25-2
最寄駅
竣工年 2022年7月
規模 地上9階
階数 坪数 賃料+共益費
(坪単価)
敷金・保証金 用途 入居日 詳細 お気に入り
追加
1階 43.9坪 1,009,700円(税別)
(23,000円/坪)
10ヶ月
店舗
即日 お問合せ お気に入り追加

担当者のコメント

関内エリアにあるエスリードグランスクエア横浜関内は、2022年7月に建てられた地上9階の建物です。新耐震構造かつ機械警備もあり安心です。また、24時間の使用可能となっています。店舗をお探しの方にはぴったりの物件です。
最寄り駅はみなとみらい線馬車道駅、みなとみらい線日本大通り駅、JR京浜東北線関内駅と交通の便の良い立地です。最短の駅からは徒歩4分と駅から近いことも魅力です。OAフロア、個別空調、エレベータ1基を完備しています。また機械式の駐車場も完備しています。

階数 坪数 賃料+共益費
(坪単価)
敷金・保証金 用途 入居日 詳細 お気に入り
追加
6階
22.34坪 357,440円(税別)
(16,000円/坪)
無し
事務所
即日 お問合せ お気に入り追加
8階
22.34坪 357,440円(税別)
(16,000円/坪)
無し
事務所
2026年2月 お問合せ お気に入り追加
10階
セットアップ①
22.34坪 424,460円(税別)
(19,000円/坪)
6ヶ月
事務所
即日 お問合せ お気に入り追加

担当者のコメント

2022年竣工 博多駅前4丁目 JR「博多」駅より徒歩9分「博多消防署通り」沿い
1フロア約45坪の小型オフィスビルのご紹介になります。
黒と白を基調にしたスタイリッシュな新築オフィスビルになります。
博多駅前・住吉エリアの物件です。
線路を挟んで、博多駅南・東エリアにも近距離となっておりますので
博多エリア全般へ行き来が可能です。
こちらのエリアで物件をお探しのお客様には
是非一度ご紹介させて頂きたい物件になります。
お気軽にお問い合わせください。

Copyright(C) Quick Consulting Co.,LTD. All right reserved.