マイホーム錦糸
| 物件名 | マイホーム錦糸 | ||
|---|---|---|---|
| 住所 | 東京都墨田区錦糸3-7-7 | ||
| 最寄駅 | |||
| 竣工年 | 2026年8月 | ||
| 規模 | 地上8階 | ||
| 空調 | OAフロア | ||
| EV | 1 基 | トイレ | 無し |
| 駐車場 | 無し | 24時間使用 | 使用可 |
| 耐震 | 新耐震基準 | 機械警備 | 有り |
募集概要
| 階数 |
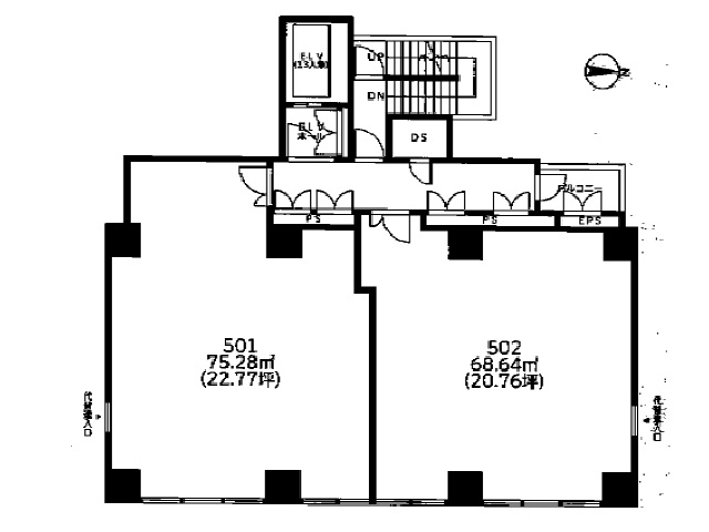
5階
502
|
|---|---|
| 坪数 | 20.76坪 |
| 用途 | 事務所 , 店舗 |
| 月額(賃料+共益費) (税別) | 502,000円 |
| 坪単価(賃料+共益費) (税別) | 24,181円/坪 |
| 賃料(税別) |
470,000円 (22,640円/坪) |
| 共益費(税別) |
32,000円 (1,541円/坪) |
| 敷金 | 6ヶ月 |
| 礼金 | 無し |
| 償却 | 2ヶ月(解約時) |
| 入居可能日 | 相談 |
| 空室確認日 | 2026/02/24 |
その他空室情報
| 階数 | 坪数 |
賃料 (税別) |
共益費 (税別) |
敷金・保証金 | 入居日 | 詳細 |
お気に入り 追加 |
|---|---|---|---|---|---|---|---|
|
4階
401
|
22.81坪 |
530,000円 (23,235円/坪) |
34,000円 (1,491円/坪) |
6ヶ月 | 相談 |
|
|
|
4階
402
|
19.55坪 |
455,000円 (23,274円/坪) |
30,000円 (1,535円/坪) |
6ヶ月 | 相談 |
|
|
|
5階
501
|
22.77坪 |
530,000円 (23,276円/坪) |
34,000円 (1,493円/坪) |
6ヶ月 | 相談 |
|
|









