MODERN BUREAU東比恵ビル
| 物件名 | MODERN BUREAU東比恵ビル | ||
|---|---|---|---|
| 住所 | 福岡県福岡市博多区東比恵3-19-24 | ||
| 最寄駅 | |||
| 竣工年 | 2021年10月 | ||
| 規模 | 地上10階 | ||
| 空調 | 個別空調 | OAフロア | OAフロア |
| EV | 1 基 | トイレ | 男女別・室内 |
| 駐車場 | 有り | 24時間使用 | 使用可 |
| 耐震 | 新耐震基準 | 機械警備 | 有り |
募集概要
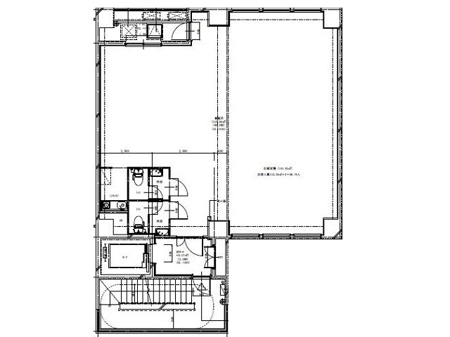
| 階数 |
2階
201
|
|---|---|
| 坪数 | 35.37坪 |
| 用途 | 事務所 , 店舗 |
| 月額(賃料+共益費) (税別) | 498,717円 |
| 坪単価(賃料+共益費) (税別) | 14,100円/坪 |
| 賃料(税別) |
424,440円 (12,000円/坪) |
| 共益費(税別) |
74,277円 (2,100円/坪) |
| 敷金 | 3ヶ月 |
| 礼金 | 1ヶ月 |
| 償却 | |
| 入居可能日 | 2026年3月 |
| 空室確認日 | 2026/02/02 |










