山の手ビル東館
| 物件名 | 山の手ビル東館 | ||
|---|---|---|---|
| 住所 | 東京都豊島区南池袋1-19-12 | ||
| 最寄駅 | |||
| 竣工年 | 1974年1月 | ||
| 規模 | 地上12階 地下1階 | ||
| 空調 | 個別空調 | OAフロア | その他 |
| EV | 1 基 | トイレ | 男女別・室外 |
| 駐車場 | 無し | 24時間使用 | 使用不可 |
| 耐震 | 旧耐震基準 | 機械警備 | 有り |
募集概要
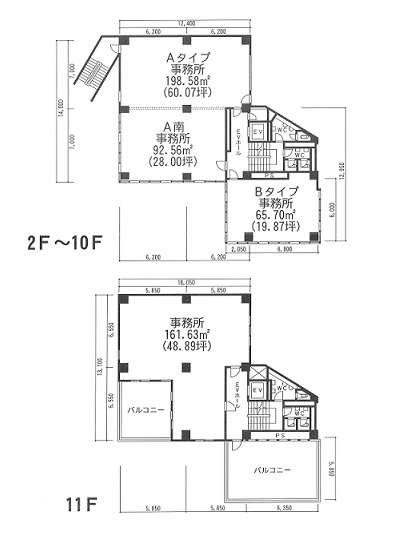
| 階数 | 11階 |
|---|---|
| 坪数 | 48.89坪 |
| 用途 | 事務所 |
| 月額(賃料+共益費) (税別) | 1,051,135円 |
| 坪単価(賃料+共益費) (税別) | 21,500円/坪 |
| 賃料(税別) |
880,020円 (18,000円/坪) |
| 共益費(税別) |
171,115円 (3,500円/坪) |
| 敷金 | 6ヶ月 |
| 礼金 | 無し |
| 償却 | 20% |
| 入居可能日 | 即日 |
| 空室確認日 | 2026/02/27 |
その他空室情報
| 階数 | 坪数 |
賃料 (税別) |
共益費 (税別) |
敷金・保証金 | 入居日 | 詳細 |
お気に入り 追加 |
|---|---|---|---|---|---|---|---|
|
8階
A
|
60.07坪 |
1,081,260円 (18,000円/坪) |
210,245円 (3,500円/坪) |
6ヶ月 | 即日 |
|
|
|
9階
A
|
60.07坪 |
1,081,260円 (18,000円/坪) |
210,245円 (3,500円/坪) |
6ヶ月 | 即日 |
|
|
|
10階
A
|
60.07坪 |
1,081,260円 (18,000円/坪) |
210,245円 (3,500円/坪) |
6ヶ月 | 相談 |
|
|









