四ツ橋養田ビル(養田ビル四ツ橋館)
| 物件名 | 四ツ橋養田ビル(養田ビル四ツ橋館) | ||
|---|---|---|---|
| 住所 | 大阪府大阪市西区北堀江1-1-23 | ||
| 最寄駅 | |||
| 竣工年 | 1975年3月 | ||
| 規模 | 地上12階 地下1階 | ||
| 空調 | 個別空調 | OAフロア | タイルカーペット |
| EV | 2 基 | トイレ | 男女別・室外 |
| 駐車場 | 有り | 24時間使用 | 使用可 |
| 耐震 | 旧耐震基準 | 機械警備 | 有り |
募集概要
| 階数 |
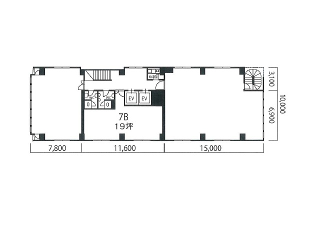
7階
7B
|
|---|---|
| 坪数 | 19坪 |
| 用途 | 事務所 |
| 月額(賃料+共益費) (税別) | 171,000円 |
| 坪単価(賃料+共益費) (税別) | 9,000円/坪 |
| 賃料(税別) |
133,000円 (7,000円/坪) |
| 共益費(税別) |
38,000円 (2,000円/坪) |
| 敷金 | 無し |
| 礼金 | 133000円 |
| 償却 | 無し |
| 入居可能日 | 2026年3月 |
| 空室確認日 | 2026/01/23 |
その他空室情報
| 階数 | 坪数 |
賃料 (税別) |
共益費 (税別) |
敷金・保証金 | 入居日 | 詳細 |
お気に入り 追加 |
|---|---|---|---|---|---|---|---|
|
8階
8B
|
22坪 |
154,000円 (7,000円/坪) |
44,000円 (2,000円/坪) |
無し | 2026年4月 |
|
|









