肥後橋INAビル
| 物件名 | 肥後橋INAビル | ||
|---|---|---|---|
| 住所 | 大阪府大阪市西区江戸堀1-17-16 | ||
| 最寄駅 | |||
| 竣工年 | 1990年2月 | ||
| 規模 | 地上10階 地上1階 | ||
| 空調 | 個別空調 | OAフロア | その他 |
| EV | 1 基 | トイレ | 男女共用・室内 |
| 駐車場 | 無し | 24時間使用 | 使用可 |
| 耐震 | 新耐震基準 | 機械警備 | 有り |
募集概要
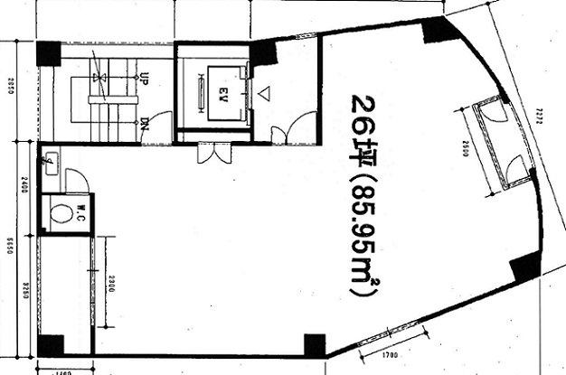
| 階数 | 7階 |
|---|---|
| 坪数 | 26坪 |
| 用途 | 事務所 |
| 月額(賃料+共益費) (税別) | 280,800円 |
| 坪単価(賃料+共益費) (税別) | 10,800円/坪 |
| 賃料(税別) |
208,000円 (8,000円/坪) |
| 共益費(税別) |
72,800円 (2,800円/坪) |
| 敷金 | 1,500,000円 |
| 礼金 | 無し |
| 償却 | スライド |
| 入居可能日 | 相談 |
| 空室確認日 | 2026/03/05 |









