こだわり条件で再検索

  • 新橋
坪数
(面積)
賃料+共益費
賃料+共益費
(坪当たり)
最寄駅
徒歩
築年数




用途





快適


安全


新橋駅周辺の賃貸オフィス・賃貸事務所 115 棟 ( 294 区画)

階数 坪数 賃料+共益費
(坪単価)
敷金・保証金 用途 入居日 詳細 お気に入り
追加
7階 36.78坪 755,609円(税別)
(20,544円/坪)
12ヶ月
事務所
店舗
即日 お問合せ お気に入り追加

担当者のコメント

新橋・虎ノ門・浜松町エリアにある西新橋中ビルは、1986年3月に建てられた地上8階地下1階の建物です。新耐震構造かつ機械警備もあり安心です。また、24時間の使用可能となっています。事務所、店舗をお探しの方にはぴったりの物件です。
最寄り駅は都営三田線内幸町駅、東京メトロ銀座線虎ノ門駅、東京メトロ日比谷線虎ノ門ヒルズ駅、JR京浜東北線新橋駅、JR山手線新橋駅と交通の便の良い立地です。最短の駅からは徒歩3分と駅から近いことも魅力です。OAフロア、個別空調、エレベータ1基を完備しています。

階数 坪数 賃料+共益費
(坪単価)
敷金・保証金 用途 入居日 詳細 お気に入り
追加
2階
A
45坪 495,000円(税別)
(11,000円/坪)
6ヶ月
事務所
その他
即日 お問合せ お気に入り追加

担当者のコメント

新橋・虎ノ門・浜松町エリアにある御成門コープは、1970年10月に建てられた地上5階の建物です。旧耐震構造です。事務所、その他をお探しの方にはぴったりの物件です。
最寄り駅は都営三田線御成門駅、東京メトロ日比谷線神谷町駅、都営大江戸線大門駅、JR山手線新橋駅、東京メトロ日比谷線虎ノ門ヒルズ駅と交通の便の良い立地です。最短の駅からは徒歩1分と駅から近いことも魅力です。個別空調、エレベータ1基を完備しています。

階数 坪数 賃料+共益費
(坪単価)
敷金・保証金 用途 入居日 詳細 お気に入り
追加
2階
A
59.3坪 相談 相談
事務所
即日 お問合せ お気に入り追加

担当者のコメント

新橋・虎ノ門・浜松町エリアにある第7東洋海事ビルは、1977年1月に建てられた地上10階の建物です。耐震補強済で機械警備もあります。また、24時間の使用可能となっています。事務所をお探しの方にはぴったりの物件です。
最寄り駅は都営三田線内幸町駅、JR山手線新橋駅、都営三田線御成門駅、東京メトロ日比谷線虎ノ門ヒルズ駅と交通の便の良い立地です。最短の駅からは徒歩5分と駅から近いことも魅力です。OAフロア、個別空調、エレベータ2基を完備しています。

物件No 0004453
住所 東京都港区新橋4-21-3
最寄駅
竣工年 2008年4月
規模 地上16階 地下1階
階数 坪数 賃料+共益費
(坪単価)
敷金・保証金 用途 入居日 詳細 お気に入り
追加
14階
居抜き 先行有
211.03坪 相談 12ヶ月
事務所
2027年8月 お問合せ お気に入り追加
15階
居抜き 先行有
211.03坪 相談 12ヶ月
事務所
2027年8月 お問合せ お気に入り追加
16階
居抜き 先行有
211.03坪 相談 12ヶ月
事務所
2027年8月 お問合せ お気に入り追加

担当者のコメント

新橋東急ビルは、新橋駅徒歩2分でアクセス可能な物件です。エントランスは吹き抜けとなっており、開放感のある仕様です。シンボリックな外観となっており、貸室内は長方形で余計な柱も無くレイアウトしやすそうです。

階数 坪数 賃料+共益費
(坪単価)
敷金・保証金 用途 入居日 詳細 お気に入り
追加
11階
申込有
38.19坪 相談 5ヶ月
事務所
2026年6月 お問合せ お気に入り追加

担当者のコメント

1フロア約40坪の築浅物件!
御成門駅徒歩7分、神谷町駅徒歩9分
2008年竣工の賃貸オフィスです。貸室には柱がなく、レイアウトの組みやすい形状になっております。OAフロア、個別空調、男女別トイレで快適な環境でお仕事ができます。

物件No 0024238
住所 東京都中央区銀座6-18-2
最寄駅
竣工年 1982年3月
規模 地上17階 地下5階
階数 坪数 賃料+共益費
(坪単価)
敷金・保証金 用途 入居日 詳細 お気に入り
追加
13階 281.76坪 相談 相談
事務所
2026年4月 お問合せ お気に入り追加
14階 271.21坪 相談 相談
事務所
2026年4月 お問合せ お気に入り追加

担当者のコメント

銀座エリアにある野村不動産銀座ビルは、1982年3月に建てられた地上17階地下5階の建物です。旧耐震構造で機械警備もあります。また、24時間の使用可能となっています。事務所をお探しの方にはぴったりの物件です。
最寄り駅は東京メトロ日比谷線東銀座駅、都営大江戸線築地市場駅、東京メトロ銀座線銀座駅、JR山手線新橋駅と交通の便の良い立地です。最短の駅からは徒歩3分と駅から近いことも魅力です。OAフロア、エレベータ7基を完備しています。また平置きの駐車場も完備しています。

物件No 0024451
住所 東京都中央区銀座8-18-1
最寄駅
竣工年 1994年3月
規模 地上10階
階数 坪数 賃料+共益費
(坪単価)
敷金・保証金 用途 入居日 詳細 お気に入り
追加
5階 41.41坪 828,200円(税別)
(20,000円/坪)
10ヶ月
事務所
即日 お問合せ お気に入り追加

担当者のコメント

銀座エリアにある銀座木挽町ビルは、1994年3月に建てられた地上10階の建物です。新耐震構造かつ機械警備もあり安心です。また、24時間の使用可能となっています。事務所をお探しの方にはぴったりの物件です。
最寄り駅は都営大江戸線築地市場駅、都営大江戸線汐留駅、東京メトロ銀座線新橋駅と交通の便の良い立地です。最短の駅からは徒歩3分と駅から近いことも魅力です。OAフロア、個別空調、エレベータ1基を完備しています。また駐車場も完備しています。

階数 坪数 賃料+共益費
(坪単価)
敷金・保証金 用途 入居日 詳細 お気に入り
追加
2階 54.61坪 1,146,810円(税別)
(21,000円/坪)
10ヶ月
事務所
即日 お問合せ お気に入り追加

担当者のコメント

銀座エリアにある銀座昭和通りビルは、1985年5月に建てられた地上9階地下2階の建物です。新耐震構造で安心です。また、24時間の使用可能となっています。事務所をお探しの方にはぴったりの物件です。
最寄り駅は都営大江戸線築地市場駅、東京メトロ日比谷線東銀座駅、JR山手線新橋駅、東京メトロ銀座線新橋駅、東京メトロ丸ノ内線銀座駅と交通の便の良い立地です。最短の駅からは徒歩4分と駅から近いことも魅力です。OAフロア、個別空調、エレベータ2基を完備しています。また機械式の駐車場も完備しています。

物件No 0024287
住所 東京都中央区銀座6-8-7
最寄駅
竣工年 2004年9月
規模 地上10階 地下2階
階数 坪数 賃料+共益費
(坪単価)
敷金・保証金 用途 入居日 詳細 お気に入り
追加
6階
602
242.75坪 相談 相談
事務所
即日 お問合せ お気に入り追加
6階
602-1(分割案)
121.9坪 相談 相談
事務所
相談 お問合せ お気に入り追加
6階
602-2(分割案)
120.32坪 相談 相談
事務所
相談 お問合せ お気に入り追加

担当者のコメント

銀座エリアにある交詢ビルディングは、2004年9月に建てられた地上10階地下2階の建物です。新耐震構造かつ機械警備もあり安心です。また、24時間の使用可能となっています。事務所をお探しの方にはぴったりの物件です。
最寄り駅は東京メトロ日比谷線銀座駅、東京メトロ銀座線新橋駅、東京メトロ有楽町線銀座一丁目駅と交通の便の良い立地です。最短の駅からは徒歩3分と駅から近いことも魅力です。OAフロア、個別空調、エレベータ3基を完備しています。

物件No 0004821
住所 東京都港区西新橋1-5-14
最寄駅
竣工年 1972年9月
規模 地上10階 地下1階
階数 坪数 賃料+共益費
(坪単価)
敷金・保証金 用途 入居日 詳細 お気に入り
追加
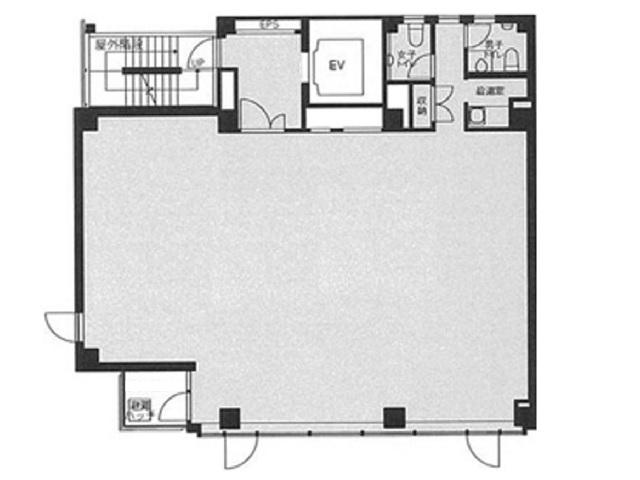
9階 60.3坪 相談 相談
事務所
即日 お問合せ お気に入り追加

担当者のコメント

外堀通り沿いの賃貸オフィス物件。
内幸町駅徒歩3分、新橋駅8分、霞が関駅7分、虎ノ門駅4分と複数路線利用可能な立地です。
港区西新橋住所、1フロア1テナント型の貸事務所物件です。外堀通り沿いに面し、複数路線利用可能なほか郵便局が隣接しており、便利な立地環境です。管理状況も良く、耐震補強工事がされている他エントランス・トイレ・空調のリニューアルと照明のLED化もされています。

Copyright(C) Quick Consulting Co.,LTD. All right reserved.