こだわり条件で再検索

  • 西梅田
坪数
(面積)
賃料+共益費
賃料+共益費
(坪当たり)
最寄駅
徒歩
築年数




用途





快適


安全


西梅田駅周辺の賃貸オフィス・賃貸事務所 145 棟 ( 401 区画)

階数 坪数 賃料+共益費
(坪単価)
敷金・保証金 用途 入居日 詳細 お気に入り
追加
8階
4
31.15坪 相談 12ヶ月
事務所
2026年5月 お問合せ お気に入り追加

担当者のコメント

梅田ゲートタワーは、阪神本線:梅田駅から徒歩3分の大規模オフィスビルです。新御堂筋に面したクリスタル調の外観は存在感がございます。ビルスペックは高く、周辺環境は賑やかで活気があります。

階数 坪数 賃料+共益費
(坪単価)
敷金・保証金 用途 入居日 詳細 お気に入り
追加
2階
202
28.79坪 相談 12ヶ月
店舗
即日 お問合せ お気に入り追加
17階 7.07坪 相談 12ヶ月
事務所
即日 お問合せ お気に入り追加
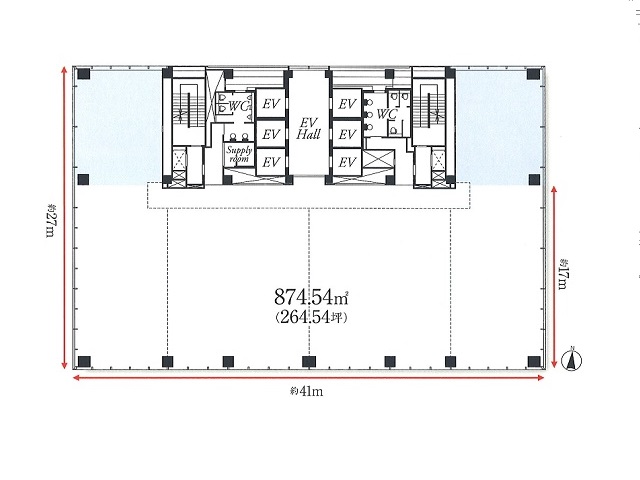
26階 399.19坪 相談 12ヶ月
事務所
2026年8月 お問合せ お気に入り追加
27階 399.19坪 相談 12ヶ月
事務所
2026年8月 お問合せ お気に入り追加
28階 399.19坪 相談 12ヶ月
事務所
2026年8月 お問合せ お気に入り追加

担当者のコメント

2023年7月に、テナント様向けラウンジがオープンしました。多様な働き方に対応できるよう、カフェブース、集中ブース、Web会議ブースなどが充実しています。

ブリーゼタワーは、西梅田エリアのランドマークタワーです。オフィスだけでなく、各種商業施設や貸しホールなど、様々な施設や設備が充実しています。もちろんオフィスビルとしてのスペックも最高水準です。
また、2008年竣工にして時代を先取りしていたジェントルビル(環境配慮型ビル)です。風や太陽光など自然エネルギーを効果的に活用する設計で、大阪市の建築物総合環境評価制度「CASBEE大阪」では最高ランクのS評価を受け、「CASBEE大阪 OF THE YEAR 2008」を受賞しています。
令和の新築Sランクビルではむしろトレンドとなっている環境配慮型ビルですが、2000台のビルとしては非常に稀少です。新築の賃料までは手が出ない、けれど十分なスペックとブランド力を備え、かつ環境にも配慮された物件をお探しと言う企業様に大変お薦めの物件です。

■耐震性能
新耐震基準の1.5倍確保(オイルダンパ採用)
■セキュリティ
防犯カメラによる24時間監視
オフィス1階エントランスホールにセキュリティゲートを設置
(非接触型ICカード採用)
エレベーター不停止フロア設定可能(非接触型ICカード採用)
オフィス出入口扉にカードリーダー設置(非接触型ICカード採用)
■防災設備
誘導灯、非常照明、自動火災報知器、非常放送、スプリンクラー
機械排煙(法定設置)、屋上にヘリコプター緊急離着陸場あり
「津波避難ビル」登録
■床荷重
500kg/m²
■電気
受電方式:22kV 3回線受電(スポットネットワーク方式)
配電方式:6.6kV 2回線配電
テナント用非常用発電機設置スペースあり
コンセント容量60VA/m²
■環境配慮・SDGs
自然換気装置、節水型機器の採用、再生資材・環境配慮型資材の利用、屋上緑化、屋上に太陽光発電、自動調光システムなど

物件No 0021513
住所 大阪府大阪市福島区福島1-4-40
最寄駅
竣工年 1992年7月
規模 地上9階
階数 坪数 賃料+共益費
(坪単価)
敷金・保証金 用途 入居日 詳細 お気に入り
追加
3階
301
40.53坪 486,360円(税別)
(12,000円/坪)
12ヶ月
事務所
即日 お問合せ お気に入り追加
8階
801
40.53坪 486,360円(税別)
(12,000円/坪)
12ヶ月
事務所
即日 お問合せ お気に入り追加

担当者のコメント

JBSL梅田ビルは、JR東西線:新福島駅から徒歩3分、JR環状線:福島駅から徒歩7分の賃貸オフィスビルです。
低コストで賃貸可能な純オフィスビルです。外観、エントランスの雰囲気も落ち着いた雰囲気で、管理状況も良好です。使い勝手の良い綺麗な貸室形状のシンプルなオフィス物件です。

物件No 0022458
住所 大阪府大阪市北区梅田1-11-4
最寄駅
竣工年 1981年8月
規模 地上25階 地下4階
階数 坪数 賃料+共益費
(坪単価)
敷金・保証金 用途 入居日 詳細 お気に入り
追加
15階 90.66坪 2,176,518円(税別)
(24,007円/坪)
6ヶ月
事務所
2026年2月 お問合せ お気に入り追加
22階
2202 申込有
73.56坪 相談 12ヶ月
事務所
即日 お問合せ お気に入り追加
24階 44.68坪 1,137,821円(税別)
(25,466円/坪)
12ヶ月
事務所
2026年1月 お問合せ お気に入り追加
24階
北E
22.34坪 相談 12ヶ月
事務所
即日 お問合せ お気に入り追加
24階 67.02坪 1,706,732円(税別)
(25,466円/坪)
12ヶ月
事務所
2026年1月 お問合せ お気に入り追加
25階
2号 申込有り
77.8坪 相談 12ヶ月
事務所
即日 お問合せ お気に入り追加

担当者のコメント

梅田エリアのランドマークビル。
地下鉄御堂筋線梅田駅より徒歩5分、また地下道から直結している立地です。
大阪駅前に立つランドマークビルとして認知度の高いビルの為、数多くの企業様がご入居しております。地下道から直結の為、アクセスも良く来客の多い企業様には特にお勧めのオフィスビルです。

物件No 0022460
住所 大阪府大阪市北区梅田1-12-26
最寄駅
竣工年 1989年1月
規模 地上14階 地下4階
階数 坪数 賃料+共益費
(坪単価)
敷金・保証金 用途 入居日 詳細 お気に入り
追加
14階
南側
40.17坪 相談 相談
事務所
2026年5月 お問合せ お気に入り追加

担当者のコメント

東京建物梅田ビルは、大阪駅から徒歩3分の大型オフィスビルです。駅直結ではないものの、立地の利便性は高いです。外観やエントランスも高級感がございます。土日祝日エントランスオープンです。

階数 坪数 賃料+共益費
(坪単価)
敷金・保証金 用途 入居日 詳細 お気に入り
追加
6階
CDE
27.78坪 相談 相談
事務所
即日 お問合せ お気に入り追加

担当者のコメント

梅田エリアのオフィスビル。
大阪メトロ四つ橋線より徒歩3分、JR東西線より徒歩3分。
大通りに面しており、ターミナル駅の大阪駅からも徒歩圏内の場所にございます。
小規模なお部屋から有り、少人数でご利用の企業様にお勧めでございます。

階数 坪数 賃料+共益費
(坪単価)
敷金・保証金 用途 入居日 詳細 お気に入り
追加
4階 27.1坪 379,400円(税別)
(14,000円/坪)
10ヶ月
事務所
即日 お問合せ お気に入り追加
5階 27.1坪 379,400円(税別)
(14,000円/坪)
10ヶ月
事務所
即日 お問合せ お気に入り追加
6階 27.1坪 379,400円(税別)
(14,000円/坪)
10ヶ月
事務所
2026年4月 お問合せ お気に入り追加

担当者のコメント

若杉西梅田ビルは、JR福島駅から徒歩6分の賃貸オフィスビルです。出入橋の交差点に面した全面ガラス張りの外観は、1フロア20坪台の小型ビルながら存在感があります。

物件No 0021875
住所 大阪府大阪市北区曽根崎2-5-10
最寄駅
竣工年 1978年11月
規模 地上11階 地下2階
階数 坪数 賃料+共益費
(坪単価)
敷金・保証金 用途 入居日 詳細 お気に入り
追加
6階 31.65坪 相談 相談
事務所
2026年2月 お問合せ お気に入り追加

担当者のコメント

梅田パシフィックビルディングは、大阪梅田エリアの大型オフィスビルです。梅田地下街7番出口から徒歩3分で、御堂筋に面します。大規模リニューアルを行ったことで、かなりお洒落で綺麗な仕上がりとなっています。
定期賃貸借契約(2027年12月31日まで)(途中解約可)

物件No 0021566
住所 大阪府大阪市北区角田町1-20
最寄駅
竣工年 1967年6月
規模 地上9階 地上1階
階数 坪数 賃料+共益費
(坪単価)
敷金・保証金 用途 入居日 詳細 お気に入り
追加
5階
51
12.7坪 228,600円(税別)
(18,000円/坪)
10ヶ月
事務所
即日 お問合せ お気に入り追加

担当者のコメント

駅のアクセスが良いオフィスビル
地下鉄谷町線東梅田駅 徒歩3分、地下鉄御堂筋線梅田駅 徒歩3分
阪急梅田駅 徒歩5分の立地。
主要路線の駅までのアクセスの良さが最大の魅力です。
JR大阪駅、地下鉄梅田駅、阪急梅田駅全て徒歩圏内で
アクセス可能でございます。

物件No 0021567
住所 大阪府大阪市北区角田町2-15
最寄駅
竣工年 1989年7月
規模 地上8階 地下1階
階数 坪数 賃料+共益費
(坪単価)
敷金・保証金 用途 入居日 詳細 お気に入り
追加
3階 85.1坪 相談 12ヶ月
事務所
相談 お問合せ お気に入り追加

担当者のコメント

梅田・桜橋エリアにあるシログチビルは、1989年7月に建てられた地上8階地下1階の建物です。新耐震構造かつ機械警備もあり安心です。また、24時間の使用可能となっています。事務所をお探しの方にはぴったりの物件です。
最寄り駅は大阪メトロ御堂筋線梅田駅です。最短の駅からは徒歩3分と駅から近いことも魅力です。個別空調、エレベータ2基を完備しています。また機械式の駐車場も完備しています。

Copyright(C) Quick Consulting Co.,LTD. All right reserved.