こだわり条件で再検索

エリア
  • 横浜市中区
坪数
(面積)
賃料+共益費
賃料+共益費
(坪当たり)
最寄駅
徒歩
築年数




用途





快適


安全


神奈川県の賃貸オフィス・賃貸事務所 76 棟 ( 178 区画)

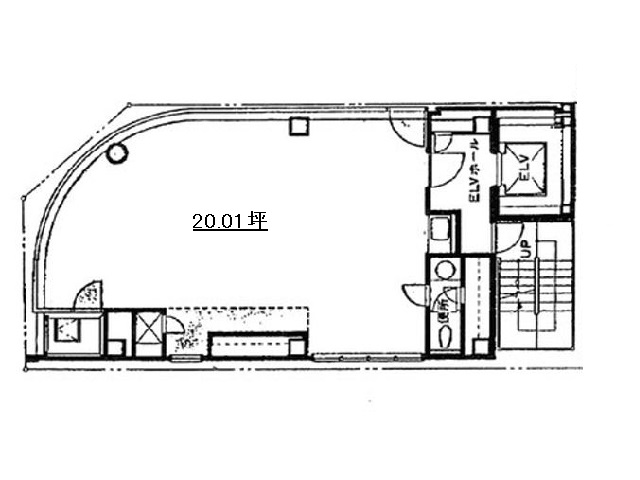
物件No 0001189
住所 神奈川県横浜市中区伊勢佐木町2-86
最寄駅
竣工年 1987年1月
規模 地上7階 地下1階
階数 坪数 賃料+共益費
(坪単価)
敷金・保証金 用途 入居日 詳細 お気に入り
追加
6階
申込有
20.01坪 200,100円(税別)
(10,000円/坪)
6ヶ月
事務所
店舗
即日 お問合せ お気に入り追加

担当者のコメント

関内エリアにある白牡丹ビルは、1987年1月に建てられた地上7階地下1階の建物です。新耐震構造かつ機械警備もあり安心です。また、24時間の使用可能となっています。事務所、店舗をお探しの方にはぴったりの物件です。
最寄り駅はJR根岸線関内駅です。最短の駅からは徒歩7分と駅から近いことも魅力です。個別空調、エレベータ1基を完備しています。

物件No 0001409
住所 神奈川県横浜市中区弁天通6-79
最寄駅
竣工年 1974年3月
規模 地上8階 地下1階
階数 坪数 賃料+共益費
(坪単価)
敷金・保証金 用途 入居日 詳細 お気に入り
追加
3階 30坪 300,000円(税別)
(10,000円/坪)
6ヶ月
事務所
即日 お問合せ お気に入り追加
4階 44坪 440,000円(税別)
(10,000円/坪)
6ヶ月
事務所
即日 お問合せ お気に入り追加
6階 29坪 290,000円(税別)
(10,000円/坪)
6ヶ月
事務所
即日 お問合せ お気に入り追加
6階 30坪 300,000円(税別)
(10,000円/坪)
6ヶ月
事務所
即日 お問合せ お気に入り追加

担当者のコメント

関内エリアにある港和ビルは、1974年3月に建てられた地上8階地下1階の建物です。旧耐震構造で機械警備もあります。また、24時間の使用可能となっています。事務所をお探しの方にはぴったりの物件です。
最寄り駅はみなとみらい線馬車道駅、JR京浜東北線関内駅、JR京浜東北線桜木町駅と交通の便の良い立地です。最短の駅からは徒歩3分と駅から近いことも魅力です。個別空調、エレベータ1基を完備しています。

物件No 0001352
住所 神奈川県横浜市中区南仲通4-39-2
最寄駅
竣工年 1993年6月
規模 地上8階 地下1階
階数 坪数 賃料+共益費
(坪単価)
敷金・保証金 用途 入居日 詳細 お気に入り
追加
2階 62.72坪 815,360円(税別)
(13,000円/坪)
10ヶ月
事務所
即日 お問合せ お気に入り追加

担当者のコメント

関内エリアにある箕田関内ビルは、1993年6月に建てられた地上8階地下1階の建物です。新耐震構造かつ機械警備もあり安心です。また、24時間の使用可能となっています。事務所をお探しの方にはぴったりの物件です。
最寄り駅はみなとみらい線馬車道駅、JR根岸線関内駅、みなとみらい線日本大通り駅と交通の便の良い立地です。最短の駅からは徒歩2分と駅から近いことも魅力です。OAフロア、個別空調、エレベータ1基を完備しています。また駐車場も完備しています。

物件No 0001202
住所 神奈川県横浜市中区海岸通3-12-1
最寄駅
竣工年 1975年2月
規模 地上9階 地下1階
階数 坪数 賃料+共益費
(坪単価)
敷金・保証金 用途 入居日 詳細 お気に入り
追加
4階
403
28.28坪 311,080円(税別)
(11,000円/坪)
6ヶ月
事務所
即日 お問合せ お気に入り追加

担当者のコメント

横浜市中区海岸通り沿いに位置しており、管理人常駐のエントランスになっています。
周辺は飲食店も多く、複数路線を使用できる立地です。

物件No 0001330
住所 神奈川県横浜市中区太田町6-79
最寄駅
竣工年 1985年7月
規模 地上8階 地下1階
階数 坪数 賃料+共益費
(坪単価)
敷金・保証金 用途 入居日 詳細 お気に入り
追加
3階
302
15.9坪 222,600円(税別)
(14,000円/坪)
5ヶ月
事務所
2026年4月 お問合せ お気に入り追加

担当者のコメント

馬車道・桜木町・関内駅の複数路線が徒歩5分圏内でご利用可能です。
各室インターホン設置で、共用部に男女別トイレがございます。
幅広い業種に対応可能ですので、是非お問い合わせください。

物件No 0001317
住所 神奈川県横浜市中区相生町6-104
最寄駅
竣工年 1993年8月
規模 地上10階 地下1階
階数 坪数 賃料+共益費
(坪単価)
敷金・保証金 用途 入居日 詳細 お気に入り
追加
1階 39.17坪 相談 12ヶ月
事務所
即日 お問合せ お気に入り追加
5階 19.51坪 相談 12ヶ月
事務所
2026年7月 お問合せ お気に入り追加

担当者のコメント

3駅利用可能な立地です。分割された小規模区画で、水回りが共用部にあるのが嬉しいポイントです。営業所やスタートアップなど様々な業種におすすめです。

階数 坪数 賃料+共益費
(坪単価)
敷金・保証金 用途 入居日 詳細 お気に入り
追加
1階 22.77坪 相談 相談
店舗
相談 お問合せ お気に入り追加
7階 465.42坪 相談 相談
事務所
2026年4月 お問合せ お気に入り追加
8階 465.42坪 相談 相談
事務所
即日 お問合せ お気に入り追加
9階 80.26坪 相談 12ヶ月
事務所
2026年7月 お問合せ お気に入り追加

担当者のコメント

みなとみらい・桜木町エリアにある日石横浜ビルは、1997年6月に建てられた地上30階地下2階の建物です。新耐震構造かつ機械警備もあり安心です。また、24時間の使用可能となっています。店舗、事務所をお探しの方にはぴったりの物件です。
最寄り駅はJR根岸線桜木町駅、横浜市営地下鉄ブルーライン桜木町駅、みなとみらい線みなとみらい駅、みなとみらい線馬車道駅と交通の便の良い立地です。最短の駅からは徒歩2分と駅から近いことも魅力です。OAフロア、エレベータ17基を完備しています。また駐車場も完備しています。

物件No 0001271
住所 神奈川県横浜市中区山下町88
最寄駅
竣工年 要確認
規模 地上1階
階数 坪数 賃料+共益費
(坪単価)
敷金・保証金 用途 入居日 詳細 お気に入り
追加
1階 33.44坪 802,560円(税別)
(24,000円/坪)
12ヶ月
店舗
即日 お問合せ お気に入り追加

担当者のコメント

関内エリアにあるパークホームズ横濱山下町88番地は、要確認に建てられた地上1階の建物です。旧耐震構造です。また、24時間の使用可能となっています。店舗をお探しの方にはぴったりの物件です。
最寄り駅はみなとみらい線元町・中華街駅です。最短の駅からは徒歩6分と駅から近いことも魅力です。個別空調を完備しています。

物件No 0001420
住所 神奈川県横浜市中区本町1-5-2
最寄駅
竣工年 1998年7月
規模 地上11階
階数 坪数 賃料+共益費
(坪単価)
敷金・保証金 用途 入居日 詳細 お気に入り
追加
3階
303
16.89坪 235,000円(税別)
(13,914円/坪)
4ヶ月
事務所
即日 お問合せ お気に入り追加

担当者のコメント

関内エリアにあるロワレール横浜本町県庁前は、1998年7月に建てられた地上11階の建物です。新耐震構造で安心です。また、24時間の使用可能となっています。事務所をお探しの方にはぴったりの物件です。
最寄り駅はみなとみらい線日本大通り駅、みなとみらい線元町・中華街駅、JR京浜東北線関内駅と交通の便の良い立地です。最短の駅からは徒歩1分と駅から近いことも魅力です。個別空調、エレベータ1基を完備しています。また駐車場も完備しています。

物件No 0001332
住所 神奈川県横浜市中区太田町6-84-2
最寄駅
竣工年 1988年8月
規模 地上8階 地下1階
階数 坪数 賃料+共益費
(坪単価)
敷金・保証金 用途 入居日 詳細 お気に入り
追加
7階
申込有
19.43坪 相談 12ヶ月
事務所
2026年6月 お問合せ お気に入り追加

担当者のコメント

関内エリアにある大樹生命横浜桜木町ビルは、1988年8月に建てられた地上8階地下1階の建物です。新耐震構造かつ機械警備もあり安心です。また、24時間の使用可能となっています。事務所をお探しの方にはぴったりの物件です。
最寄り駅はみなとみらい線馬車道駅、JR京浜東北線桜木町駅、横浜市営地下鉄ブルーライン関内駅と交通の便の良い立地です。最短の駅からは徒歩3分と駅から近いことも魅力です。OAフロア、個別空調、エレベータ2基を完備しています。また機械式の駐車場も完備しています。

Copyright(C) Quick Consulting Co.,LTD. All right reserved.