こだわり条件で再検索

エリア
  • 大阪府
変更
坪数
(面積)
賃料+共益費
賃料+共益費
(坪当たり)
最寄駅
徒歩
築年数




用途





快適


安全


お電話でのお問い合わせ
06-6147-9791

大阪府の賃貸オフィス・賃貸事務所 980 棟 ( 2237 区画)

物件No 0019830
住所 大阪府大阪市中央区西心斎橋1-13-15
最寄駅
竣工年 1990年5月
規模 地上9階
階数 坪数 賃料+共益費
(坪単価)
敷金・保証金 用途 入居日 詳細 お気に入り
追加
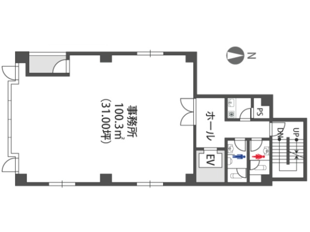
5階 51.42坪 874,140円(税別)
(17,000円/坪)
6ヶ月
事務所
店舗
即日 お問合せ お気に入り追加
8階
南側 先行有り
26坪 390,000円(税別)
(15,000円/坪)
6ヶ月
事務所
即日 お問合せ お気に入り追加

担当者のコメント

三栄心斎橋ビルは、心斎橋駅のほぼ真上に位置する駅近物件です。長堀通りに面した視認性の有る物件です。土日祝日もエントランスオープンで、来客の多いテナント様にもオススメです。

階数 坪数 賃料+共益費
(坪単価)
敷金・保証金 用途 入居日 詳細 お気に入り
追加
3階
301
16.1坪 136,850円(税別)
(8,500円/坪)
6ヶ月
事務所
即日 お問合せ お気に入り追加
4階
403
19.57坪 166,345円(税別)
(8,500円/坪)
6ヶ月
事務所
即日 お問合せ お気に入り追加
5階
ワンフロア
116.43坪 989,655円(税別)
(8,500円/坪)
6ヶ月
事務所
即日 お問合せ お気に入り追加

担当者のコメント

三洋ビルは、肥後橋駅から徒歩3分の賃貸オフィスビルです。周辺には飲食店も多く便利な環境です。レトロな雰囲気の物件ですが、その分賃料がリーズナブルです。

階数 坪数 賃料+共益費
(坪単価)
敷金・保証金 用途 入居日 詳細 お気に入り
追加
1階
B1-1F
63坪 1,260,000円(税別)
(20,000円/坪)
12ヶ月
店舗
即日 お問合せ お気に入り追加

担当者のコメント

本町・堺筋本町エリアにある三興ビルは、1971年2月に建てられた地上8階地下2階の建物です。旧耐震構造です。また、24時間の使用可能となっています。店舗をお探しの方にはぴったりの物件です。
最寄り駅は大阪メトロ御堂筋線本町駅、大阪メトロ四つ橋線本町駅、大阪メトロ中央線本町駅、大阪メトロ長堀鶴見緑地線心斎橋駅、大阪メトロ御堂筋線心斎橋駅と交通の便の良い立地です。最短の駅からは徒歩6分と駅から近いことも魅力です。個別空調、エレベータ1基を完備しています。

物件No 0019747
住所 大阪府大阪市中央区上本町西5-3-5
最寄駅
竣工年 1993年8月
規模 地上11階 地下1階
階数 坪数 賃料+共益費
(坪単価)
敷金・保証金 用途 入居日 詳細 お気に入り
追加
B1階
先行有
70.86坪 相談 12ヶ月
事務所
即日 お問合せ お気に入り追加

担当者のコメント

来客の多い業種の企業様に最適です。
大阪市営地下鉄谷町線、千日前線「谷町九丁目」徒歩圏内。
上町筋と千日前通りの交差点角地に立地する視認性の高い大型オフィスビルです。
基準階の貸室面積は約100坪、最大3分割が可能です。角地立地のため、どの貸室も採光がとれ明るい室内です。

物件No 0021286
住所 大阪府大阪市天王寺区上本町6-6-26
最寄駅
竣工年 1991年3月
規模 地上9階 地下1階
階数 坪数 賃料+共益費
(坪単価)
敷金・保証金 用途 入居日 詳細 お気に入り
追加
8階
801
58.3坪 700,000円(税別)
(12,007円/坪)
6ヶ月
事務所
即日 お問合せ お気に入り追加

担当者のコメント

上六光陽ビルは、大阪上本町駅から徒歩3分の賃貸オフィスビルです。駅近で新耐震基準、OAフロアと魅力的な物件です。貸室形状も長方形に近く、レイアウトもしやすそうです。

物件No 0021283
住所 大阪府大阪市天王寺区上本町5-2-11
最寄駅
竣工年 要確認
規模 地上10階 地下1階
階数 坪数 賃料+共益費
(坪単価)
敷金・保証金 用途 入居日 詳細 お気に入り
追加
5階
502
21.4坪 246,100円(税別)
(11,500円/坪)
無し
事務所
相談 お問合せ お気に入り追加
9階
905
9.7坪 121,250円(税別)
(12,500円/坪)
相談
事務所
相談 お問合せ お気に入り追加

担当者のコメント

小区画の大きさをお求めの企業様に最適。
近鉄難波線、近鉄大阪線・大阪上本町駅、地下鉄谷町線・谷町九丁目駅より徒歩3分の貸事務所。
上本町5丁目にあるオフィスビルです。駅からも近く大通りに面しているため、初めて来られるお客様にも場所の説明がしやすいです。区画は小区画からあり、お求めの大きさが見つかりやすいです。

階数 坪数 賃料+共益費
(坪単価)
敷金・保証金 用途 入居日 詳細 お気に入り
追加
3階
ワンフロア
31坪 250,000円(税別)
(8,065円/坪)
1ヶ月
事務所
即日 お問合せ お気に入り追加

担当者のコメント

上本町・IBPタワーは、1992年10月に建てられた地上11階の建物です。新耐震構造かつ機械警備もあり安心です。また、24時間の使用可能となっています。事務所をお探しの方にはぴったりの物件です。
最寄り駅は近鉄大阪線大阪上本町駅、近鉄難波線大阪上本町駅、大阪メトロ谷町線谷町九丁目駅、大阪メトロ千日前線谷町九丁目駅と交通の便の良い立地です。最短の駅からは徒歩4分と駅から近いことも魅力です。個別空調、エレベータ1基を完備しています。

物件No 0059674
住所 大阪府大阪市中央区上町A-12
最寄駅
竣工年 1969年1月
規模 地上9階 地上2階
階数 坪数 賃料+共益費
(坪単価)
敷金・保証金 用途 入居日 詳細 お気に入り
追加
8階 75.01坪 相談 6ヶ月
事務所
即日 お問合せ お気に入り追加
8階 71.08坪 相談 6ヶ月
事務所
即日 お問合せ お気に入り追加
8階 150.02坪 相談 6ヶ月
事務所
即日 お問合せ お気に入り追加

担当者のコメント

上町セイワビルは、大阪市中央区上町に位置する賃貸オフィスビルです。谷町六丁目駅から徒歩5分、上町筋に面します。無料の貸会議室有り。耐震診断済みで新耐震基準相当を満たします。

物件No 0050261
住所 大阪府大阪市西区南堀江3-12-23
最寄駅
竣工年 1973年3月
規模 地上5階 地下1階
階数 坪数 賃料+共益費
(坪単価)
敷金・保証金 用途 入居日 詳細 お気に入り
追加
4階
402
55.61坪 475,000円(税別)
(8,542円/坪)
1,230,000円
事務所
店舗
即日 お問合せ お気に入り追加

担当者のコメント

不二建物西長堀ビルは、西長堀駅から徒歩2分の貸事務所・貸店舗ビルです。1フロア117坪の大型ビルです。業種はご相談ください。

階数 坪数 賃料+共益費
(坪単価)
敷金・保証金 用途 入居日 詳細 お気に入り
追加
3階 13.7坪 相談 10ヶ月
事務所
2025年11月 お問合せ お気に入り追加

担当者のコメント

耐震改修工事済で新耐震基準のオフィスビル。
地下鉄堺筋線・南森町駅より徒歩5分、地下鉄堺筋線・扇町より徒歩8分の賃貸オフィス。
大通りから中に入っており周辺は大変静かな環境です。共用部もリニューアル工事済で大変キレイで清潔感があります。喫煙スペースも設けてあります。

Copyright(C) Quick Consulting Co.,LTD. All right reserved.