こだわり条件で再検索

  • 九段下
坪数
(面積)
賃料+共益費
賃料+共益費
(坪当たり)
最寄駅
徒歩
築年数




用途





快適


安全


九段下駅周辺の賃貸オフィス・賃貸事務所 60 棟 ( 97 区画)

階数 坪数 賃料+共益費
(坪単価)
敷金・保証金 用途 入居日 詳細 お気に入り
追加
3階
セットアップ
31.88坪 829,000円(税別)
(26,004円/坪)
1ヶ月
事務所
即日 お問合せ お気に入り追加

担当者のコメント

飯田橋・水道橋・神保町エリアにあるグラン水道橋は、1986年1月に建てられた地上5階の建物です。新耐震構造かつ機械警備もあり安心です。また、24時間の使用可能となっています。事務所をお探しの方にはぴったりの物件です。
最寄り駅はJR中央・総武線水道橋駅、都営三田線水道橋駅、東京メトロ東西線飯田橋駅、東京メトロ半蔵門線神保町駅、都営新宿線九段下駅と交通の便の良い立地です。最短の駅からは徒歩2分と駅から近いことも魅力です。OAフロア、個別空調、エレベータ1基を完備しています。

階数 坪数 賃料+共益費
(坪単価)
敷金・保証金 用途 入居日 詳細 お気に入り
追加
5階 20.25坪 309,272円(税別)
(15,273円/坪)
5ヶ月
事務所
即日 お問合せ お気に入り追加

担当者のコメント

クリエイトビルは東京メトロ東西線飯田橋駅徒歩3分で、目白通り沿いに立地しています。周辺には飲食店やコンビニが多数あり、何かと便利なエリアです。

物件No 0062063
住所 東京都千代田区神田神保町3-19-7
最寄駅
竣工年 1988年5月
規模 地上階
階数 坪数 賃料+共益費
(坪単価)
敷金・保証金 用途 入居日 詳細 お気に入り
追加
6階 34.09坪 540,000円(税別)
(15,840円/坪)
5ヶ月
事務所
相談 お問合せ お気に入り追加

担当者のコメント

飯田橋・水道橋・神保町エリアにあるダイナミック・アート九段下ビルは、1988年5月に建てられた地上階の建物です。新耐震構造で安心です。事務所をお探しの方にはぴったりの物件です。
最寄り駅は東京メトロ半蔵門線九段下駅です。最短の駅からは徒歩3分と駅から近いことも魅力です。

階数 坪数 賃料+共益費
(坪単価)
敷金・保証金 用途 入居日 詳細 お気に入り
追加
4階
セットアップ
43.05坪 相談 6ヶ月
事務所
2026年2月 お問合せ お気に入り追加

担当者のコメント

麹町・番町・市ヶ谷エリアにあるパシフィックスクエア九段南は、1992年12月に建てられた地上10階の建物です。新耐震構造かつ機械警備もあり安心です。また、24時間の使用可能となっています。事務所をお探しの方にはぴったりの物件です。
最寄り駅は都営新宿線市ケ谷駅、東京メトロ半蔵門線九段下駅、東京メトロ東西線九段下駅、東京メトロ有楽町線市ケ谷駅と交通の便の良い立地です。最短の駅からは徒歩7分と駅から近いことも魅力です。個別空調、エレベータ1基を完備しています。

物件No 0016938
住所 東京都千代田区飯田橋2-6-6
最寄駅
竣工年 1991年2月
規模 地上9階 地下1階
階数 坪数 賃料+共益費
(坪単価)
敷金・保証金 用途 入居日 詳細 お気に入り
追加
3階 50.02坪 相談 12ヶ月
事務所
2026年3月 お問合せ お気に入り追加

担当者のコメント

飯田橋・水道橋・神保町エリアにあるヒューリック飯田橋ビルは、1991年2月に建てられた地上9階地下1階の建物です。新耐震構造かつ機械警備もあり安心です。また、24時間の使用可能となっています。事務所をお探しの方にはぴったりの物件です。
最寄り駅は東京メトロ東西線九段下駅、東京メトロ半蔵門線九段下駅、都営新宿線九段下駅、JR中央・総武線飯田橋駅と交通の便の良い立地です。最短の駅からは徒歩3分と駅から近いことも魅力です。OAフロア、個別空調、エレベータ1基を完備しています。

物件No 0064234
住所 東京都千代田区九段北1-15-12
最寄駅
竣工年 2022年11月
規模 地上12階
階数 坪数 賃料+共益費
(坪単価)
敷金・保証金 用途 入居日 詳細 お気に入り
追加
2階 38.86坪 932,640円(税別)
(24,000円/坪)
6ヶ月
事務所
即日 お問合せ お気に入り追加
3階 38.86坪 932,640円(税別)
(24,000円/坪)
6ヶ月
事務所
即日 お問合せ お気に入り追加
4階 38.86坪 932,640円(税別)
(24,000円/坪)
6ヶ月
事務所
即日 お問合せ お気に入り追加
5階 38.86坪 932,640円(税別)
(24,000円/坪)
6ヶ月
事務所
即日 お問合せ お気に入り追加
6階 38.86坪 932,640円(税別)
(24,000円/坪)
6ヶ月
事務所
即日 お問合せ お気に入り追加
7階 38.86坪 932,640円(税別)
(24,000円/坪)
6ヶ月
事務所
即日 お問合せ お気に入り追加
8階
セットアップ
38.86坪 1,049,220円(税別)
(27,000円/坪)
6ヶ月
事務所
即日 お問合せ お気に入り追加
10階 40.91坪 1,022,750円(税別)
(25,000円/坪)
6ヶ月
事務所
即日 お問合せ お気に入り追加

担当者のコメント

麹町・番町・市ヶ谷エリアにあるミナト九段下ビルは、2022年11月に建てられた地上12階の建物です。新耐震構造かつ機械警備もあり安心です。また、24時間の使用可能となっています。事務所をお探しの方にはぴったりの物件です。
最寄り駅は東京メトロ半蔵門線九段下駅、東京メトロ東西線九段下駅、JR中央・総武線飯田橋駅と交通の便の良い立地です。最短の駅からは徒歩5分と駅から近いことも魅力です。OAフロア、個別空調、エレベータ1基を完備しています。

物件No 0061971
住所 東京都千代田区西神田2-4-16
最寄駅
竣工年 2023年9月
規模 地上14階 地下1階
階数 坪数 賃料+共益費
(坪単価)
敷金・保証金 用途 入居日 詳細 お気に入り
追加
3階
申込有
79.11坪 1,977,750円(税別)
(25,000円/坪)
6ヶ月
事務所
即日 お問合せ お気に入り追加

担当者のコメント

飯田橋・水道橋・神保町エリアにあるレ・ジェイドクロス千代田神保町は、2023年9月に建てられた地上14階地下1階の建物です。新耐震構造かつ機械警備もあり安心です。また、24時間の使用可能となっています。事務所をお探しの方にはぴったりの物件です。
最寄り駅は東京メトロ半蔵門線神保町駅、東京メトロ東西線九段下駅、JR中央・総武線水道橋駅と交通の便の良い立地です。最短の駅からは徒歩5分と駅から近いことも魅力です。OAフロア、個別空調、エレベータ1基を完備しています。

物件No 0037164
住所 東京都千代田区九段南2-4-4
最寄駅
竣工年 1992年4月
規模 地上9階
階数 坪数 賃料+共益費
(坪単価)
敷金・保証金 用途 入居日 詳細 お気に入り
追加
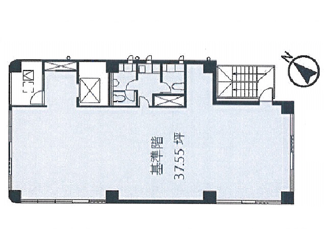
5階 37.55坪 580,025円(税別)
(15,447円/坪)
6ヶ月
事務所
2026年1月 お問合せ お気に入り追加

担当者のコメント

靖国通り沿いで、靖国神社の向いにある物件っです。
通り沿いには桜並木が広がっているので春は窓からの眺めが良いです。
貸室の形も長方形で使い勝手の良さそうな物件です。

階数 坪数 賃料+共益費
(坪単価)
敷金・保証金 用途 入居日 詳細 お気に入り
追加
6階 52.59坪 1,052,000円(税別)
(20,004円/坪)
4ヶ月
事務所
店舗
相談 お問合せ お気に入り追加
7階 50坪 1,000,000円(税別)
(20,000円/坪)
4ヶ月
事務所
店舗
相談 お問合せ お気に入り追加

担当者のコメント

水道橋西通り沿いの物件です。駅前立地で人通りも多いです。業種幅広くご相談可能です。

階数 坪数 賃料+共益費
(坪単価)
敷金・保証金 用途 入居日 詳細 お気に入り
追加
3階 32.14坪 482,100円(税別)
(15,000円/坪)
8ヶ月
事務所
即日 お問合せ お気に入り追加

担当者のコメント

飯田橋・水道橋・神保町エリアにある中西ビルは、1985年9月に建てられた地上9階の建物です。新耐震構造で安心です。また、24時間の使用可能となっています。事務所をお探しの方にはぴったりの物件です。
最寄り駅はJR中央・総武線水道橋駅、都営三田線神保町駅、都営新宿線神保町駅、東京メトロ東西線九段下駅と交通の便の良い立地です。最短の駅からは徒歩4分と駅から近いことも魅力です。OAフロア、個別空調、エレベータ1基を完備しています。

Copyright(C) Quick Consulting Co.,LTD. All right reserved.