こだわり条件で再検索

エリア
  • 大阪府
変更
坪数
(面積)
賃料+共益費
賃料+共益費
(坪当たり)
最寄駅
徒歩
築年数




用途





快適


安全


お電話でのお問い合わせ
06-6147-9791

大阪府の賃貸オフィス・賃貸事務所 990 棟 ( 2258 区画)

階数 坪数 賃料+共益費
(坪単価)
敷金・保証金 用途 入居日 詳細 お気に入り
追加
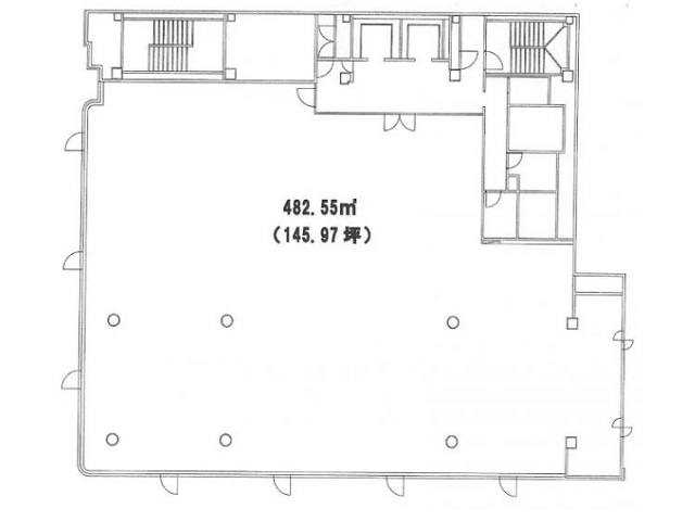
1階 90.85坪 1,181,050円(税別)
(13,000円/坪)
12ヶ月
事務所
2026年3月 お問合せ お気に入り追加

担当者のコメント

本町・堺筋本町エリアにある大永ビルは、1989年1月に建てられた地上9階地下2階の建物です。新耐震構造で安心です。また、24時間の使用可能となっています。事務所をお探しの方にはぴったりの物件です。
最寄り駅は大阪メトロ堺筋線堺筋本町駅、大阪メトロ中央線堺筋本町駅、大阪メトロ御堂筋線本町駅、大阪メトロ堺筋線北浜駅、京阪本線北浜駅と交通の便の良い立地です。最短の駅からは徒歩3分と駅から近いことも魅力です。OAフロア、個別空調、エレベータ2基を完備しています。また駐車場も完備しています。

物件No 0019428
住所 大阪府大阪市中央区安土町2-2-15
最寄駅
竣工年 1935年5月
規模 地上8階 地下1階
階数 坪数 賃料+共益費
(坪単価)
敷金・保証金 用途 入居日 詳細 お気に入り
追加
5階
502
30坪 363,000円(税別)
(12,100円/坪)
1,188,000円
事務所
2025年12月 お問合せ お気に入り追加

担当者のコメント

堺筋本町駅から徒歩1分。堺筋にも面した好立地物件です。竣工年数は相当経っていますが、レトロな雰囲気を残したままリフォームしたデザイナーズオフィスとなっております。

階数 坪数 賃料+共益費
(坪単価)
敷金・保証金 用途 入居日 詳細 お気に入り
追加
B1階
B114号
10.04坪 相談 相談
倉庫・工場
即日 お問合せ お気に入り追加
3階 93.12坪 相談 12ヶ月
事務所
2026年2月 お問合せ お気に入り追加
14階
申込有
59.28坪 相談 12ヶ月
事務所
2026年2月 お問合せ お気に入り追加
23階
内定
101.4坪 相談 12ヶ月
事務所
2026年1月 お問合せ お気に入り追加
25階
申込有
66.03坪 相談 12ヶ月
事務所
2026年2月 お問合せ お気に入り追加

担当者のコメント

大阪国際ビルは、大阪市中央区安土町に位置する大規模な高層賃貸オフィスビルで、御堂筋線本町駅から徒歩5分、堺筋線堺筋本町駅から徒歩2分と交通アクセスが非常に良好です。本町通に面しており、視認性の高いビルで、本町エリアの老舗ランドマークとしても知られています。竣工年数は経っていますが、2016年に大規模リニューアルが行われたため、外観や共用部も綺麗に保たれており、専用部においても入居者に快適な環境を提供しています。ビル内には入居テナント専用の最上階リフレッシュスペースや貸会議室があり、ビジネスをサポートする設備が充実しています。また、荷物用エレベーターも完備されており、利便性も高いです。

耐震性は新耐震基準相当で、旧建築基準法第38条に基づく大臣認定を受けており、安全面でも信頼できます。1階にはコンビニ、書店、100円ショップが入っており、周辺には飲食店も多く、利便性の高い立地です。ただし、ビルが古い点や賃料がやや高めである点がウィークポイントとなりますが、その分、質の高いオフィス環境が提供されており、CASBEE不動産マーケット普及版Aランク認証を取得している点も評価ポイントです。内覧のご依頼は、お気軽に当社の問い合わせフォームからご連絡ください。

※レンタルオフィスの募集状況は流動的なため下記は仮表示です。最新の募集状況はお問合せ下さい。
※また、レンタルオフィスの面積は仮の数値です。実際の面積とは異なりますのでご注意ください
階数 坪数 賃料+共益費
(坪単価)
敷金・保証金 用途 入居日 詳細 お気に入り
追加
31階
6名用
12坪 相談 相談
レンタルオフィス
相談 お問合せ お気に入り追加

担当者のコメント

大阪国際ビル内のリージャス(Regus)区画です。
リージャス(Rugus)は世界シェアNo1のハイブランドレンタルオフィスです。
会議室やビジネスラウンジ、受付をシェアする特性上、表記の坪数は通常オフィスに換算した場合の目安となる坪数です。
内装工事・原状回復工事が不要のため、今すぐオフィスを稼働させたい企業様や、人数の増減が多い企業様にオススメです。当区画をご契約頂くと、日本全国、世界各国のリージャスビジネスラウンジをご利用いただけます。

大阪国際ビル【32F:テナント専用展望ラウンジ】もご利用可能です。

階数 坪数 賃料+共益費
(坪単価)
敷金・保証金 用途 入居日 詳細 お気に入り
追加
4階
ワンフロア
18坪 相談 10ヶ月
事務所
相談 お問合せ お気に入り追加

担当者のコメント

1フロア1テナントのオフィスビル。
地下鉄堺筋線、地下鉄御堂筋線・堺筋本町駅より徒歩6分、地下鉄御堂筋線、地下鉄四つ橋線・本町駅より徒歩7分の貸事務所。
安土町3丁目にあるオフィスビルです。1フロア1テナントのため他の企業様を気にすることなくお仕事が出来ます。また貸室内は採光が取れるため明るいです。周辺は様々な店舗が立ち並び環境は良好です。

物件No 0019437
住所 大阪府大阪市中央区安土町3-2-4
最寄駅
竣工年 1991年3月
規模 地上7階 地下1階
階数 坪数 賃料+共益費
(坪単価)
敷金・保証金 用途 入居日 詳細 お気に入り
追加
3階 30.82坪 342,580円(税別)
(11,116円/坪)
5ヶ月
事務所
即日 お問合せ お気に入り追加

担当者のコメント

使いやすい区画、重要度の高いオフィス
地下鉄御堂筋線j本町駅徒歩2分の立地
1フロアー1テナントの使いやすさ、1階にカフェが入居しており説明のしやすい
オフィスになります。

物件No 0055167
住所 大阪府大阪市中央区安土町3-5-13
最寄駅
竣工年 2023年4月
規模 地上19階 地下2階
階数 坪数 賃料+共益費
(坪単価)
敷金・保証金 用途 入居日 詳細 お気に入り
追加
B1階 20.66坪 相談 相談
店舗
相談 お問合せ お気に入り追加
18階 185.64坪 相談 相談
事務所
相談 お問合せ お気に入り追加

担当者のコメント

本町ガーデンシティテラスは、大阪府大阪市中央区安土町に位置し、御堂筋沿いに建つオフィスビルです。御堂筋線本町駅から徒歩1分、駅直結という抜群のアクセスを誇り、ビジネスの中心地である本町エリアに位置しています。周辺には銀行や郵便局、飲食店が豊富に揃い、地下にはコンビニもあるため、日常のビジネス活動がスムーズに行える環境が整っています。

このビルは制震構造を採用しており、安全性の高い設計が施されています。フロアスペックとしては、天井高2800㎜、OAフロアの高さは100㎜、床荷重500㎏に対応しており、電気容量も60VA/㎡を確保しています。また、LED照明やシステムグリッド天井、Low-Eペアガラスなど、快適で効率的なオフィス環境を実現する設備が整っています。自然換気機能も備えており、環境にも配慮されています。

設備面ではエレベーターが6基設置され、荷物用エレベーターも完備されています。BCP対策としては、免震構造に加えて2回線受電方式が採用され、非常用発電機(共用部のみ供給)が設置されています。また、テナント専用の非常用発電機を設置するスペースも確保されており、災害時の対応にも優れています。

このビルの特徴的な点は、2階から12階にかけて緑豊かなガーデンテラスが設置されていることです。実質的に専有部として利用できるものの、共用部扱いのため契約面積には含まれず、メンテナンスもビル側で行われます。賃料は本町エリアでも最高値クラスに設定されていますが、駅直結や充実した設備、快適なオフィス環境を考慮すると、十分に納得できる条件となっています。

物件No 0040266
住所 大阪府大阪市中央区安堂寺町1-3-12
最寄駅
竣工年 1993年1月
規模 地上10階
階数 坪数 賃料+共益費
(坪単価)
敷金・保証金 用途 入居日 詳細 お気に入り
追加
5階
501
16.33坪 220,000円(税別)
(13,472円/坪)
2ヶ月
事務所
即日 お問合せ お気に入り追加
8階
801
16.33坪 220,000円(税別)
(13,472円/坪)
2ヶ月
事務所
即日 お問合せ お気に入り追加

担当者のコメント

大阪谷町ビルは、大阪市中央区安堂寺町1丁目の貸事務所・貸店舗ビルです。谷町六丁目駅から徒歩1分と駅近で、大通り(長堀通)にも面します。

物件No 0047230
住所 大阪府大阪市中央区安堂寺町1-3-8
最寄駅
竣工年 1988年1月
規模 地上10階
階数 坪数 賃料+共益費
(坪単価)
敷金・保証金 用途 入居日 詳細 お気に入り
追加
2階
2F+3F
39.02坪 351,180円(税別)
(9,000円/坪)
6ヶ月
事務所
即日 お問合せ お気に入り追加
8階 21.46坪 193,140円(税別)
(9,000円/坪)
6ヶ月
事務所
即日 お問合せ お気に入り追加

担当者のコメント

谷町・OBPエリアにある谷町高橋ビル(旧:丸福谷町ビル)は、1988年1月に建てられた地上10階の建物です。新耐震構造かつ機械警備もあり安心です。また、24時間の使用可能となっています。事務所をお探しの方にはぴったりの物件です。
最寄り駅は大阪メトロ谷町線谷町六丁目駅、大阪メトロ長堀鶴見緑地線谷町六丁目駅です。最短の駅からは徒歩1分と駅から近いことも魅力です。個別空調、エレベータ1基を完備しています。

物件No 0019450
住所 大阪府大阪市中央区安堂寺町2-1-10
最寄駅
竣工年 1992年4月
規模 地上10階
階数 坪数 賃料+共益費
(坪単価)
敷金・保証金 用途 入居日 詳細 お気に入り
追加
5階
570
20.88坪 198,360円(税別)
(9,500円/坪)
320,000円
事務所
相談 お問合せ お気に入り追加

担当者のコメント

谷町・OBPエリアにある安堂寺第17松屋ビルは、1992年4月に建てられた地上10階の建物です。新耐震構造かつ機械警備もあり安心です。また、24時間の使用可能となっています。事務所をお探しの方にはぴったりの物件です。
最寄り駅は大阪メトロ谷町線谷町六丁目駅です。最短の駅からは徒歩1分と駅から近いことも魅力です。個別空調、エレベータ1基を完備しています。また駐車場も完備しています。

Copyright(C) Quick Consulting Co.,LTD. All right reserved.