こだわり条件で再検索

  • 渋谷
坪数
(面積)
賃料+共益費
賃料+共益費
(坪当たり)
最寄駅
徒歩
築年数




用途





快適


安全


渋谷駅周辺の賃貸オフィス・賃貸事務所 141 棟 ( 336 区画)

物件No 0010087
住所 東京都渋谷区神泉町8-16
最寄駅
竣工年 2005年9月
規模 地上14階 地下1階
階数 坪数 賃料+共益費
(坪単価)
敷金・保証金 用途 入居日 詳細 お気に入り
追加
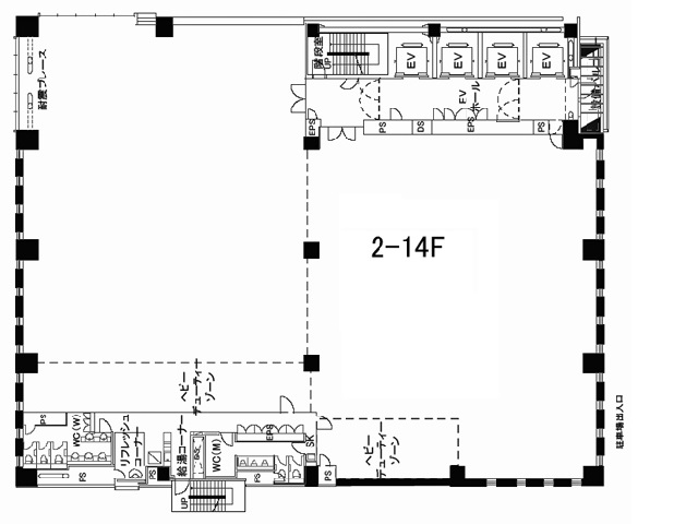
2階 268.71坪 相談 12ヶ月
事務所
2026年5月 お問合せ お気に入り追加

担当者のコメント

基準階268坪の大型オフィスビルになります。
玉川通りを1つ入った立地で、最寄りは神泉駅、渋谷駅までも徒歩約8分とアクセス良好です。
外観、設備のグレードは高く、徒歩1分圏内にコンビニや飲食店があることも魅力的です。

物件No 0048190
住所 東京都渋谷区道玄坂1-10-8
最寄駅
竣工年 1983年12月
規模 地上11階 地下1階
※レンタルオフィスの募集状況は流動的なため下記は仮表示です。最新の募集状況はお問合せ下さい。
※また、レンタルオフィスの面積は仮の数値です。実際の面積とは異なりますのでご注意ください
階数 坪数 賃料+共益費
(坪単価)
敷金・保証金 用途 入居日 詳細 お気に入り
追加
7階
12名用
7.45坪 相談 無し
レンタルオフィス
即日 お問合せ お気に入り追加

担当者のコメント

渋谷エリアにあるPlug and Play SHIBUYA(渋谷道玄坂東急ビル)は、1983年12月に建てられた地上11階地下1階の建物です。新耐震構造かつ機械警備もあり安心です。また、24時間の使用可能となっています。レンタルオフィスをお探しの方にはぴったりの物件です。
最寄り駅はJR山手線渋谷駅、JR埼京線渋谷駅です。最短の駅からは徒歩5分と駅から近いことも魅力です。OAフロア、エレベータ4基を完備しています。また機械式の駐車場も完備しています。

※レンタルオフィスの募集状況は流動的なため下記は仮表示です。最新の募集状況はお問合せ下さい。
※また、レンタルオフィスの面積は仮の数値です。実際の面積とは異なりますのでご注意ください
階数 坪数 賃料+共益費
(坪単価)
敷金・保証金 用途 入居日 詳細 お気に入り
追加
22階
2名用
4坪 相談 2ヶ月
レンタルオフィス
即日 お問合せ お気に入り追加
22階
3名用
6坪 相談 2ヶ月
レンタルオフィス
即日 お問合せ お気に入り追加
22階
20名用
40坪 相談 2ヶ月
レンタルオフィス
即日 お問合せ お気に入り追加
22階
15名用
30坪 相談 2ヶ月
レンタルオフィス
即日 お問合せ お気に入り追加
22階
10名用
20坪 相談 2ヶ月
レンタルオフィス
即日 お問合せ お気に入り追加
22階
5名用
10坪 相談 2ヶ月
レンタルオフィス
即日 お問合せ お気に入り追加

担当者のコメント

渋谷エリアにあるリージャス(渋谷マークシティ)は、2000年2月に建てられた地上23階地下1階の建物です。新耐震構造かつ機械警備もあり安心です。また、24時間の使用可能となっています。レンタルオフィスをお探しの方にはぴったりの物件です。
最寄り駅はJR埼京線渋谷駅、JR山手線渋谷駅、JR成田エクスプレス渋谷駅、京王井の頭線渋谷駅、JR湘南新宿ライン渋谷駅と交通の便の良い立地です。最短の駅からは徒歩1分と駅から近いことも魅力です。OAフロア、個別空調、エレベータ12基を完備しています。

物件No 0052150
住所 東京都渋谷区道玄坂1-15-12
最寄駅
竣工年 2020年3月
規模 地上10階 地下1階
階数 坪数 賃料+共益費
(坪単価)
敷金・保証金 用途 入居日 詳細 お気に入り
追加
B1階
居抜き
24.2坪 相談 10ヶ月
店舗
2026年2月 お問合せ お気に入り追加

担当者のコメント

渋谷エリアにあるACN渋谷道玄坂ビルは、2020年3月に建てられた地上10階地下1階の建物です。新耐震構造で安心です。店舗をお探しの方にはぴったりの物件です。
最寄り駅はJR山手線渋谷駅、東京メトロ銀座線渋谷駅、京王井の頭線渋谷駅と交通の便の良い立地です。最短の駅からは徒歩3分と駅から近いことも魅力です。個別空調、エレベータ1基を完備しています。

物件No 0010628
住所 東京都渋谷区道玄坂1-18-1
最寄駅
竣工年 2006年3月
規模 地上8階
階数 坪数 賃料+共益費
(坪単価)
敷金・保証金 用途 入居日 詳細 お気に入り
追加
8階
A
15.8坪 505,600円(税別)
(32,000円/坪)
10ヶ月
事務所
2026年6月 お問合せ お気に入り追加

担当者のコメント

道玄坂出口に立地、駅からも近く、人通りの多い立地です。1Fにコンビニがあり目印になります。面積もコンパクトサイズで新規開設や営業所におすすめです。

物件No 0010636
住所 東京都渋谷区道玄坂1-19-11
最寄駅
竣工年 1986年1月
規模 地上10階
階数 坪数 賃料+共益費
(坪単価)
敷金・保証金 用途 入居日 詳細 お気に入り
追加
8階
先行
43坪 1,333,000円(税別)
(31,000円/坪)
8ヶ月
事務所
店舗
2026年2月 お問合せ お気に入り追加

担当者のコメント

道玄坂沿いの物件です。名前の通りセピア色の外観が特徴的です。設備が充実しているので快適にご利用できます。

物件No 0010639
住所 東京都渋谷区道玄坂1-19-12
最寄駅
竣工年 2002年3月
規模 地上10階
階数 坪数 賃料+共益費
(坪単価)
敷金・保証金 用途 入居日 詳細 お気に入り
追加
6階 24.66坪 相談 相談
事務所
2026年2月 お問合せ お気に入り追加

担当者のコメント

渋谷エリアにある道玄坂今井ビルは、2002年3月に建てられた地上10階の建物です。新耐震構造かつ機械警備もあり安心です。また、24時間の使用可能となっています。事務所をお探しの方にはぴったりの物件です。
最寄り駅はJR山手線渋谷駅、JR埼京線渋谷駅、東京メトロ銀座線渋谷駅、京王井の頭線渋谷駅と交通の便の良い立地です。最短の駅からは徒歩7分と駅から近いことも魅力です。OAフロア、個別空調、エレベータ1基を完備しています。

物件No 0063765
住所 東京都渋谷区道玄坂1-19-12
最寄駅
竣工年 2024年6月
規模 地上11階
階数 坪数 賃料+共益費
(坪単価)
敷金・保証金 用途 入居日 詳細 お気に入り
追加
2階
セットアップ
20.74坪 829,600円(税別)
(40,000円/坪)
6ヶ月
事務所
相談 お問合せ お気に入り追加
3階
セットアップ
20.74坪 829,600円(税別)
(40,000円/坪)
6ヶ月
事務所
相談 お問合せ お気に入り追加
4階
セットアップ
20.74坪 829,600円(税別)
(40,000円/坪)
6ヶ月
事務所
相談 お問合せ お気に入り追加
5階
セットアップ
20.74坪 829,600円(税別)
(40,000円/坪)
6ヶ月
事務所
即日 お問合せ お気に入り追加
6階
セットアップ
20.74坪 829,600円(税別)
(40,000円/坪)
6ヶ月
事務所
即日 お問合せ お気に入り追加
7階
セットアップ
20.74坪 829,600円(税別)
(40,000円/坪)
6ヶ月
事務所
即日 お問合せ お気に入り追加
8階
セットアップ
20.74坪 829,600円(税別)
(40,000円/坪)
6ヶ月
事務所
即日 お問合せ お気に入り追加
9階
セットアップ
20.74坪 829,600円(税別)
(40,000円/坪)
6ヶ月
事務所
相談 お問合せ お気に入り追加
10階
セットアップ
20.74坪 829,600円(税別)
(40,000円/坪)
6ヶ月
事務所
相談 お問合せ お気に入り追加
11階
セットアップ
20.74坪 829,600円(税別)
(40,000円/坪)
6ヶ月
事務所
相談 お問合せ お気に入り追加

担当者のコメント

渋谷エリアにあるReRaiMa(レライマ)渋谷道玄坂は、2024年6月に建てられた地上11階の建物です。新耐震構造かつ機械警備もあり安心です。また、24時間の使用可能となっています。事務所をお探しの方にはぴったりの物件です。
最寄り駅はJR山手線渋谷駅、東京メトロ半蔵門線渋谷駅、東急東横線渋谷駅と交通の便の良い立地です。最短の駅からは徒歩5分と駅から近いことも魅力です。OAフロア、個別空調、エレベータ1基を完備しています。

物件No 0010640
住所 東京都渋谷区道玄坂1-19-13
最寄駅
竣工年 1989年5月
規模 地上10階 地下1階
階数 坪数 賃料+共益費
(坪単価)
敷金・保証金 用途 入居日 詳細 お気に入り
追加
4階 24.15坪 627,900円(税別)
(26,000円/坪)
8ヶ月
事務所
店舗
即日 お問合せ お気に入り追加

担当者のコメント

渋谷道玄坂住所の貸事務所物件です。道玄坂に面しているため来客される方への説明もしやすい立地です。

物件No 0062486
住所 東京都渋谷区道玄坂1-19-14
最寄駅
竣工年 2024年6月
規模 地上10階 地下1階
階数 坪数 賃料+共益費
(坪単価)
敷金・保証金 用途 入居日 詳細 お気に入り
追加
8階
セットアップ
25.43坪 相談 無し
事務所
2026年4月 お問合せ お気に入り追加

担当者のコメント

コエル渋谷道玄坂は、渋谷駅からマークシティを抜けて目の前の物件です。ビル低層に飲食店やサウナが入居しています。内装・家具付きのセットアップ仕様で初期費用、原状回復費用の削減が可能です。

Copyright(C) Quick Consulting Co.,LTD. All right reserved.