(仮)南砂町PJ
| 物件名 | (仮)南砂町PJ | ||
|---|---|---|---|
| 住所 | 東京都江東区新砂3-1-18 | ||
| 最寄駅 | |||
| 竣工年 | 2014年3月 | ||
| 規模 | 地上15階 地下1階 | ||
| 空調 | 個別空調 | OAフロア | OAフロア |
| EV | 4 基 | トイレ | 男女別・室外 |
| 駐車場 | 有り | 24時間使用 | 使用可 |
| 耐震 | 新耐震基準 | 機械警備 | 有り |
募集概要
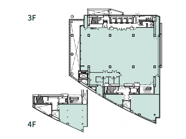
| 階数 |
3階
3F+4F
|
|---|---|
| 坪数 | 316.62坪 |
| 用途 | 倉庫・工場 |
| 月額(賃料+共益費) (税別) | 相談 |
| 坪単価(賃料+共益費) (税別) | 相談 |
| 賃料(税別) | 相談 |
| 共益費(税別) | 相談 |
| 敷金 | 相談 |
| 礼金 | 無し |
| 償却 | 無し |
| 入居可能日 | 相談 |
| 空室確認日 | 2026/03/16 |
その他空室情報
| 階数 | 坪数 |
賃料 (税別) |
共益費 (税別) |
敷金・保証金 | 入居日 | 詳細 |
お気に入り 追加 |
|---|---|---|---|---|---|---|---|
|
5階
5F+6F
|
402.96坪 | 相談 | 相談 | 相談 | 相談 |
|
|
|
7階
食堂
|
211.9坪 | 相談 | 相談 | 相談 | 相談 |
|
|
| 8階 | 213.62坪 | 相談 | 相談 | 相談 | 相談 |
|
|
| 9階 | 213.76坪 | 相談 | 相談 | 相談 | 相談 |
|
|
| 10階 | 212.29坪 | 相談 | 相談 | 相談 | 相談 |
|
|
| 11階 | 212.27坪 | 相談 | 相談 | 相談 | 相談 |
|
|
| 12階 | 212.27坪 | 相談 | 相談 | 相談 | 相談 |
|
|
| 13階 | 212.27坪 | 相談 | 相談 | 相談 | 相談 |
|
|









