ANA WORK CABIN(ANAスカイコネクトなんば)
| 物件名 | ANA WORK CABIN(ANAスカイコネクトなんば) | ||
|---|---|---|---|
| 住所 | 大阪府大阪市中央区難波千日前1510-11(地番) | ||
| 最寄駅 | |||
| 竣工年 | 2025年2月 | ||
| 規模 | 地上9階 | ||
| 空調 | 個別空調 | OAフロア | OAフロア |
| EV | 2 基 | トイレ | 男女別・室外 |
| 駐車場 | 無し | 24時間使用 | 使用可 |
| 耐震 | 新耐震基準 | 機械警備 | 有り |
募集概要
| 階数 |
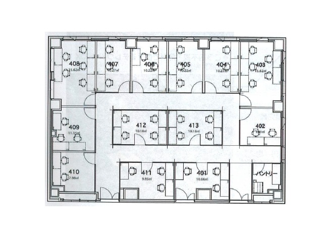
4階
406
|
|---|---|
| 坪数 | 3.09坪 |
| 用途 | レンタルオフィス |
| 月額(賃料+共益費) (税別) | 340,000円 |
| 坪単価(賃料+共益費) (税別) | 110,032円/坪 |
| 賃料(税別) |
340,000円 (110,032円/坪) |
| 共益費(税別) | 賃料に含む |
| 敷金 | 相談 |
| 礼金 | 無し |
| 償却 | |
| 入居可能日 | 即日 |
| 空室確認日 | ※ |
※レンタルオフィスの募集状況は流動的なため下記は仮表示です。最新の募集状況はお問合せ下さい。
※また、レンタルオフィスの面積は仮の数値です。実際の面積とは異なりますのでご注意ください
※また、レンタルオフィスの面積は仮の数値です。実際の面積とは異なりますのでご注意ください
その他空室情報
| 階数 | 坪数 |
賃料 (税別) |
共益費 (税別) |
敷金・保証金 | 入居日 | 詳細 |
お気に入り 追加 |
|---|---|---|---|---|---|---|---|
|
3階
302
|
3.17坪 |
255,000円 (80,442円/坪) |
賃料に含む | 相談 | 即日 |
|
|
|
3階
303
|
3.15坪 |
255,000円 (80,952円/坪) |
賃料に含む | 相談 | 即日 |
|
|
|
3階
304
|
3.15坪 |
255,000円 (80,952円/坪) |
賃料に含む | 相談 | 即日 |
|
|
|
3階
305
|
3.17坪 |
255,000円 (80,442円/坪) |
賃料に含む | 相談 | 即日 |
|
|
|
3階
306
|
4.72坪 |
425,000円 (90,042円/坪) |
賃料に含む | 相談 | 即日 |
|
|
|
3階
307
|
3.43坪 |
255,000円 (74,344円/坪) |
賃料に含む | 相談 | 即日 |
|
|
|
4階
413
|
3.07坪 |
340,000円 (110,749円/坪) |
賃料に含む | 相談 | 即日 |
|
|
|
4階
401
|
3.22坪 |
255,000円 (79,193円/坪) |
賃料に含む | 相談 | 即日 |
|
|
|
4階
412
|
3.07坪 |
340,000円 (110,749円/坪) |
賃料に含む | 相談 | 即日 |
|
|
|
4階
411
|
3坪 |
255,000円 (85,000円/坪) |
賃料に含む | 相談 | 即日 |
|
|
|
4階
410
|
2.41坪 |
170,000円 (70,539円/坪) |
賃料に含む | 相談 | 即日 |
|
|
|
4階
409
|
3.43坪 |
255,000円 (74,344円/坪) |
賃料に含む | 相談 | 即日 |
|
|
|
4階
408
|
4.72坪 |
425,000円 (90,042円/坪) |
賃料に含む | 相談 | 即日 |
|
|
|
4階
407
|
3.1坪 |
255,000円 (82,258円/坪) |
賃料に含む | 相談 | 即日 |
|
|
|
4階
405
|
3.09坪 |
255,000円 (82,524円/坪) |
賃料に含む | 相談 | 即日 |
|
|
|
4階
404
|
3.1坪 |
255,000円 (82,258円/坪) |
賃料に含む | 相談 | 即日 |
|
|
|
4階
403
|
4.72坪 |
425,000円 (90,042円/坪) |
賃料に含む | 相談 | 即日 |
|
|









