清水ビル
| 物件名 | 清水ビル | ||
|---|---|---|---|
| 住所 | 神奈川県川崎市幸区南幸町2-20-8 | ||
| 最寄駅 | |||
| 竣工年 | 1990年6月 | ||
| 規模 | 地上11階 | ||
| 空調 | OAフロア | ||
| EV | トイレ | 男女共用・室内 | |
| 駐車場 | 調査中 | 24時間使用 | 調査中 |
| 耐震 | 新耐震基準 | 機械警備 | 調査中 |
募集概要
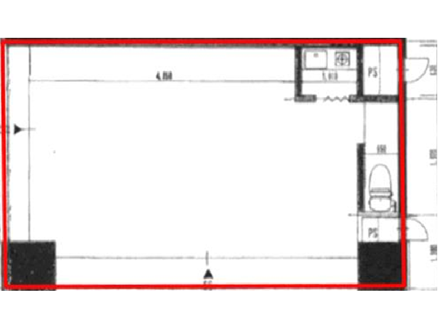
| 階数 | 1階 |
|---|---|
| 坪数 | 8.82坪 |
| 用途 | 事務所 , 店舗 |
| 月額(賃料+共益費) (税別) | 相談 |
| 坪単価(賃料+共益費) (税別) | 相談 |
| 賃料(税別) | 相談 |
| 共益費(税別) | 相談 |
| 敷金 | 12ヶ月 |
| 礼金 | 無し |
| 償却 | 無し |
| 入居可能日 | |
| 空室確認日 | 2026/02/17 |









