アイビーヒルズ本郷
| 物件名 | アイビーヒルズ本郷 | ||
|---|---|---|---|
| 住所 | 愛知県名古屋市名東区上社2-197 | ||
| 最寄駅 | |||
| 竣工年 | 1986年3月 | ||
| 規模 | 地上3階 地下1階 | ||
| 空調 | 個別空調 | OAフロア | その他 |
| EV | トイレ | 男女共用・室内 | |
| 駐車場 | 無し | 24時間使用 | |
| 耐震 | 新耐震基準 | 機械警備 | |
募集概要
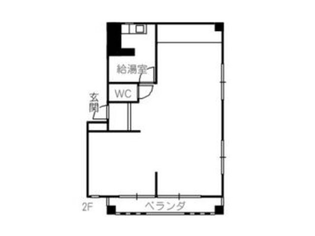
| 階数 |
2階
201
|
|---|---|
| 坪数 | 13.06坪 |
| 用途 | 事務所 , 店舗 |
| 月額(賃料+共益費) (税別) | 113,000円 |
| 坪単価(賃料+共益費) (税別) | 8,652円/坪 |
| 賃料(税別) |
110,000円 (8,423円/坪) |
| 共益費(税別) |
3,000円 (230円/坪) |
| 敷金 | 無し |
| 礼金 | 無し |
| 償却 | 無し |
| 入居可能日 | 即日 |
| 空室確認日 | 2025/11/11 |









