CADRE tamachi(キャドレ 田町)
| 物件名 | CADRE tamachi(キャドレ 田町) | ||
|---|---|---|---|
| 住所 | 東京都港区芝浦3-6-12 | ||
| 最寄駅 | |||
| 竣工年 | 2026年1月 | ||
| 規模 | 地上8階 | ||
| 空調 | 個別空調 | OAフロア | OAフロア |
| EV | 1 基 | トイレ | 男女別・室内 |
| 駐車場 | 無し | 24時間使用 | 使用可 |
| 耐震 | 新耐震基準 | 機械警備 | 有り |
募集概要
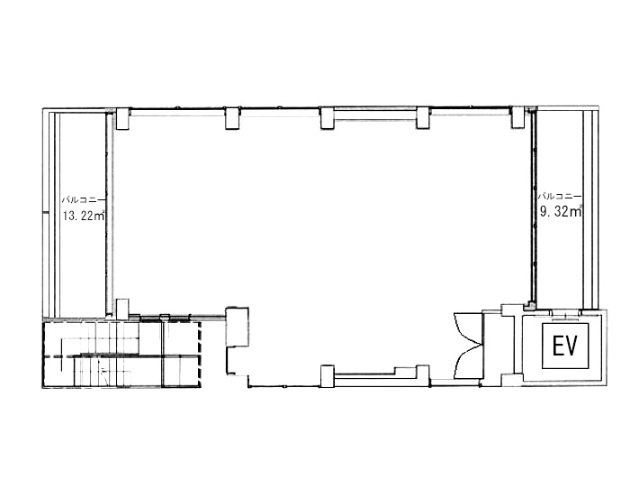
| 階数 | 2階 |
|---|---|
| 坪数 | 31.48坪 |
| 用途 | 店舗 |
| 月額(賃料+共益費) (税別) | 1,038,840円 |
| 坪単価(賃料+共益費) (税別) | 33,000円/坪 |
| 賃料(税別) |
1,038,840円 (33,000円/坪) |
| 共益費(税別) | 賃料に含む |
| 敷金 | 6ヶ月 |
| 礼金 | 無し |
| 償却 | 無し |
| 入居可能日 | 2026年2月 |
| 空室確認日 | 2025/11/05 |
その他空室情報
| 階数 | 坪数 |
賃料 (税別) |
共益費 (税別) |
敷金・保証金 | 入居日 | 詳細 |
お気に入り 追加 |
|---|---|---|---|---|---|---|---|
| 1階 | 19.76坪 |
731,120円 (37,000円/坪) |
賃料に含む | 6ヶ月 | 2026年2月 |
|
|
| 3階 | 29.6坪 |
917,600円 (31,000円/坪) |
賃料に含む | 6ヶ月 | 2026年2月 |
|
|
|
4階
セットアップ
|
31.42坪 |
1,162,540円 (37,000円/坪) |
賃料に含む | 無し | 2026年2月 |
|
|
|
5階
セットアップ
|
35.41坪 |
1,310,170円 (37,000円/坪) |
賃料に含む | 無し | 2026年2月 |
|
|
|
6階
セットアップ
|
35.41坪 |
1,310,170円 (37,000円/坪) |
賃料に含む | 無し | 2026年2月 |
|
|
|
7階
セットアップ
|
35.41坪 |
1,451,810円 (41,000円/坪) |
賃料に含む | 無し | 2026年2月 |
|
|
|
8階
セットアップ
|
23.92坪 |
932,880円 (39,000円/坪) |
賃料に含む | 無し | 2026年2月 |
|
|









