福岡大名ガーデンシティ テラス棟
| 物件名 | 福岡大名ガーデンシティ テラス棟 | ||
|---|---|---|---|
| 住所 | 福岡県福岡市中央区大名2-6-53 | ||
| 最寄駅 | |||
| 竣工年 | 2023年3月 | ||
| 規模 | 地上17階 | ||
| 空調 | OAフロア | スケルトン | |
| EV | 1 基 | トイレ | 男女共用・室外 |
| 駐車場 | 無し | 24時間使用 | 調査中 |
| 耐震 | 新耐震基準 | 機械警備 | 有り |
募集概要
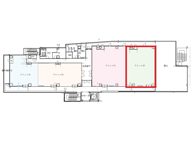
| 階数 |
4階
4D
|
|---|---|
| 坪数 | 39.5坪 |
| 用途 | 店舗 |
| 月額(賃料+共益費) (税別) | 869,000円 |
| 坪単価(賃料+共益費) (税別) | 22,000円/坪 |
| 賃料(税別) |
869,000円 (22,000円/坪) |
| 共益費(税別) | 賃料に含む |
| 敷金 | 12ヶ月 |
| 礼金 | 無し |
| 償却 | |
| 入居可能日 | 相談 |
| 空室確認日 | 2025/10/28 |










