日河出口ビル
| 物件名 | 日河出口ビル | ||
|---|---|---|---|
| 住所 | 東京都日野市新町1-21-2 | ||
| 最寄駅 | |||
| 竣工年 | 2025年1月 | ||
| 規模 | 地上10階 | ||
| 空調 | 個別空調 | OAフロア | タイルカーペット |
| EV | 1 基 | トイレ | 男女別・室内 |
| 駐車場 | 有り | 24時間使用 | 使用可 |
| 耐震 | 新耐震基準 | 機械警備 | 調査中 |
募集概要
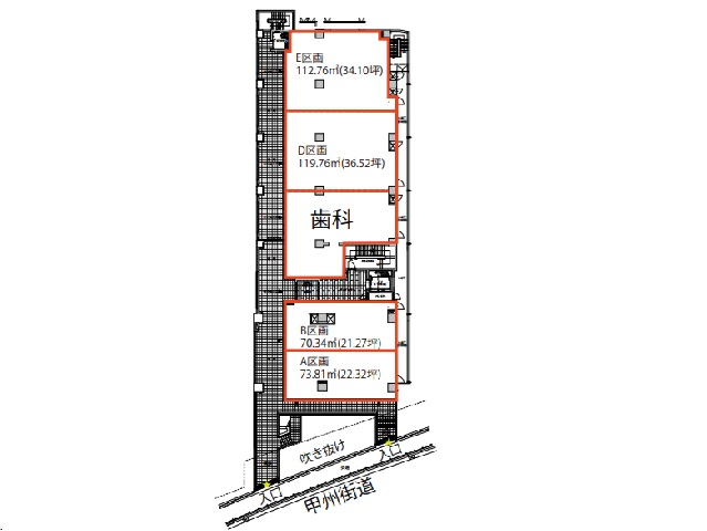
| 階数 |
2階
E
|
|---|---|
| 坪数 | 34.1坪 |
| 用途 | 事務所 , 店舗 |
| 月額(賃料+共益費) (税別) | 511,500円 |
| 坪単価(賃料+共益費) (税別) | 15,000円/坪 |
| 賃料(税別) |
511,500円 (15,000円/坪) |
| 共益費(税別) | 賃料に含む |
| 敷金 | 6ヶ月 |
| 礼金 | 1ヶ月 |
| 償却 | 相談 |
| 入居可能日 | 即日 |
| 空室確認日 | 2025/12/03 |
その他空室情報
| 階数 | 坪数 |
賃料 (税別) |
共益費 (税別) |
敷金・保証金 | 入居日 | 詳細 |
お気に入り 追加 |
|---|---|---|---|---|---|---|---|
|
2階
D
|
36.52坪 |
547,800円 (15,000円/坪) |
賃料に含む | 6ヶ月 | 即日 |
|
|
|
2階
DE(統合案)
|
70.62坪 |
1,059,300円 (15,000円/坪) |
賃料に含む | 6ヶ月 | 即日 |
|
|
|
2階
A
|
22.4坪 |
380,800円 (17,000円/坪) |
賃料に含む | 6ヶ月 | 即日 |
|
|
|
2階
AB(統合案)
|
43.6坪 |
741,200円 (17,000円/坪) |
賃料に含む | 6ヶ月 | 即日 |
|
|
|
2階
B
|
21.2坪 |
360,400円 (17,000円/坪) |
賃料に含む | 6ヶ月 | 即日 |
|
|









