ライラックⅡ
| 物件名 | ライラックⅡ | ||
|---|---|---|---|
| 住所 | 広島県広島市中区紙屋町1-4-7 | ||
| 最寄駅 | |||
| 竣工年 | 1999年11月 | ||
| 規模 | 地上4階 | ||
| 空調 | 無し | OAフロア | スケルトン |
| EV | 1 基 | トイレ | 無し |
| 駐車場 | 無し | 24時間使用 | 使用可 |
| 耐震 | 新耐震基準 | 機械警備 | 無し |
募集概要
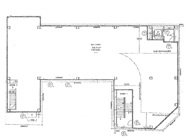
| 階数 | 2階 |
|---|---|
| 坪数 | 95.24坪 |
| 用途 | 店舗 |
| 月額(賃料+共益費) (税別) | 1,050,000円 |
| 坪単価(賃料+共益費) (税別) | 11,025円/坪 |
| 賃料(税別) |
1,000,000円 (10,500円/坪) |
| 共益費(税別) |
50,000円 (525円/坪) |
| 敷金 | 8ヶ月 |
| 礼金 | 1ヶ月 |
| 償却 | 相談 |
| 入居可能日 | 2026年3月 |
| 空室確認日 | 2025/12/10 |









