X-BASE(クロスベース) SHIBUYA
| 物件名 | X-BASE(クロスベース) SHIBUYA | ||
|---|---|---|---|
| 住所 | 東京都渋谷区松涛2-15-13 | ||
| 最寄駅 | |||
| 竣工年 | 2011年5月 | ||
| 規模 | 地上6階 地下1階 | ||
| 空調 | 個別空調 | OAフロア | OAフロア |
| EV | 2 基 | トイレ | 男女別・室外 |
| 駐車場 | 有り | 24時間使用 | 使用可 |
| 耐震 | 新耐震基準 | 機械警備 | 有り |
募集概要
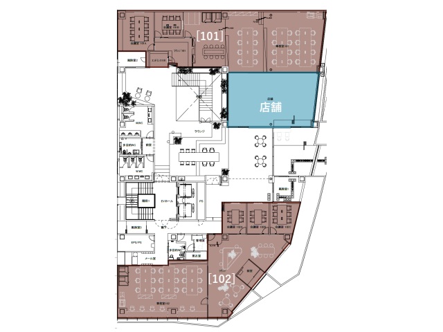
| 階数 |
1階
申101
|
|---|---|
| 坪数 | 22.47坪 |
| 用途 | 店舗 |
| 月額(賃料+共益費) (税別) | 674,734円 |
| 坪単価(賃料+共益費) (税別) | 30,028円/坪 |
| 賃料(税別) |
674,734円 (30,028円/坪) |
| 共益費(税別) | 賃料に含む |
| 敷金 | 6ヶ月 |
| 礼金 | 無し |
| 償却 | 無し |
| 入居可能日 | 2026年1月 |
| 空室確認日 | 2025/11/06 |
その他空室情報
| 階数 | 坪数 |
賃料 (税別) |
共益費 (税別) |
敷金・保証金 | 入居日 | 詳細 |
お気に入り 追加 |
|---|---|---|---|---|---|---|---|
|
B1階
Room9 5席
|
5.07坪 |
350,000円 (69,034円/坪) |
賃料に含む | 6ヶ月 | 2026年1月 |
|
|
|
B1階
Room1 8席
|
8.39坪 |
560,000円 (66,746円/坪) |
賃料に含む | 6ヶ月 | 2026年1月 |
|
|
|
B1階
Room8 4席
|
3.98坪 |
280,000円 (70,352円/坪) |
賃料に含む | 6ヶ月 | 2026年1月 |
|
|
|
B1階
Room15 3席
|
3.22坪 |
240,000円 (74,534円/坪) |
賃料に含む | 6ヶ月 | 2026年1月 |
|
|
|
B1階
Room4 8席
|
7.95坪 |
600,000円 (75,472円/坪) |
賃料に含む | 6ヶ月 | 2026年1月 |
|
|
|
B1階
Room14 4席
|
4.02坪 |
280,000円 (69,652円/坪) |
賃料に含む | 6ヶ月 | 2026年1月 |
|
|
|
B1階
Room7 7席
|
7.51坪 |
455,000円 (60,586円/坪) |
賃料に含む | 6ヶ月 | 2026年1月 |
|
|
|
B1階
Room13 7席
|
7.74坪 |
490,000円 (63,307円/坪) |
賃料に含む | 6ヶ月 | 2026年1月 |
|
|
|
B1階
Room2 12席
|
11.86坪 |
720,000円 (60,708円/坪) |
賃料に含む | 6ヶ月 | 2026年1月 |
|
|
|
B1階
Room12 6席
|
6.93坪 |
420,000円 (60,606円/坪) |
賃料に含む | 6ヶ月 | 2026年1月 |
|
|
|
B1階
Room6 7席
|
7.65坪 |
490,000円 (64,052円/坪) |
賃料に含む | 6ヶ月 | 2026年1月 |
|
|
|
B1階
Room11 6席
|
5.98坪 |
420,000円 (70,234円/坪) |
賃料に含む | 6ヶ月 | 2026年1月 |
|
|
|
B1階
Room3 14席
|
12.19坪 |
910,000円 (74,651円/坪) |
賃料に含む | 6ヶ月 | 2026年1月 |
|
|
|
B1階
Room10 5席
|
4.8坪 |
350,000円 (72,917円/坪) |
賃料に含む | 6ヶ月 | 2026年1月 |
|
|
|
B1階
Room5 7席
|
6.19坪 |
525,000円 (84,814円/坪) |
賃料に含む | 6ヶ月 | 2026年1月 |
|
|
|
1階
101セットアップ
|
54.84坪 |
2,030,448円 (37,025円/坪) |
賃料に含む | 6ヶ月 | 2026年1月 |
|
|
|
1階
102セットアップ
|
56.1坪 |
2,074,464円 (36,978円/坪) |
賃料に含む | 6ヶ月 | 2026年1月 |
|
|
|
2階
申203セットアップ
|
58.24坪 |
2,214,440円 (38,023円/坪) |
賃料に含む | 6ヶ月 | 2026年1月 |
|
|
|
2階
申202セットアップ
|
87.84坪 |
3,339,715円 (38,020円/坪) |
賃料に含む | 6ヶ月 | 2026年1月 |
|
|
|
2階
申204セットアップ
|
73.84坪 |
2,807,495円 (38,021円/坪) |
賃料に含む | 6ヶ月 | 2026年1月 |
|
|
|
2階
申201セットアップ
|
80.34坪 |
3,054,285円 (38,017円/坪) |
賃料に含む | 6ヶ月 | 2026年1月 |
|
|
|
3階
304セットアップ
|
74.87坪 |
2,846,480円 (38,019円/坪) |
賃料に含む | 6ヶ月 | 2026年1月 |
|
|
|
3階
301セットアップ
|
56.16坪 |
2,135,320円 (38,022円/坪) |
賃料に含む | 6ヶ月 | 2026年1月 |
|
|
|
3階
303セットアップ
|
53.6坪 |
2,037,800円 (38,019円/坪) |
賃料に含む | 6ヶ月 | 2026年1月 |
|
|
|
3階
302セットアップ
|
62.31坪 |
2,369,000円 (38,020円/坪) |
賃料に含む | 6ヶ月 | 2026年1月 |
|
|
|
4階
401セットアップ
|
30.33坪 |
1,183,186円 (39,010円/坪) |
賃料に含む | 6ヶ月 | 2026年1月 |
|
|
|
4階
403セットアップ
|
73.53坪 |
2,795,650円 (38,021円/坪) |
賃料に含む | 6ヶ月 | 2026年1月 |
|
|
|
4階
402セットアップ
|
88.82坪 |
3,376,745円 (38,018円/坪) |
賃料に含む | 6ヶ月 | 2026年1月 |
|
|
|
5階
セットアップ
|
139.83坪 |
5,594,798円 (40,011円/坪) |
賃料に含む | 6ヶ月 | 2026年1月 |
|
|
|
6階
セットアップ
|
87.87坪 |
3,515,171円 (40,004円/坪) |
賃料に含む | 6ヶ月 | 2026年1月 |
|
|









