榊原第二ビル
| 物件名 | 榊原第二ビル | ||
|---|---|---|---|
| 住所 | 千葉県船橋市前原西2-14-5 | ||
| 最寄駅 | |||
| 竣工年 | 1982年2月 | ||
| 規模 | 地上7階 地下1階 | ||
| 空調 | 個別空調 | OAフロア | タイルカーペット |
| EV | 2 基 | トイレ | 男女別・室外 |
| 駐車場 | 有り | 24時間使用 | 使用可 |
| 耐震 | 耐震補強済 | 機械警備 | 調査中 |
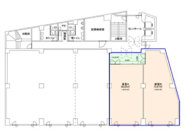
募集概要
| 階数 |
7階
A先行有
|
|---|---|
| 坪数 | 20.58坪 |
| 用途 | 事務所 , 店舗 |
| 月額(賃料+共益費) (税別) | 402,000円 |
| 坪単価(賃料+共益費) (税別) | 19,534円/坪 |
| 賃料(税別) |
330,000円 (16,035円/坪) |
| 共益費(税別) |
72,000円 (3,499円/坪) |
| 敷金 | 10ヶ月 |
| 礼金 | 無し |
| 償却 | 10% |
| 入居可能日 | 相談 |
| 空室確認日 | 2025/12/02 |
その他空室情報
| 階数 | 坪数 |
賃料 (税別) |
共益費 (税別) |
敷金・保証金 | 入居日 | 詳細 |
お気に入り 追加 |
|---|---|---|---|---|---|---|---|
|
7階
検討有
|
47.77坪 |
740,400円 (15,499円/坪) |
167,100円 (3,498円/坪) |
10ヶ月 | 即日 |
|
|
|
7階
B
|
21.98坪 |
350,000円 (15,924円/坪) |
76,900円 (3,499円/坪) |
10ヶ月 | 相談 |
|
|









