The Company 天神西通り店
| 物件名 | The Company 天神西通り店 | ||
|---|---|---|---|
| 住所 | 福岡県福岡市中央区大名2-7-27 | ||
| 最寄駅 | |||
| 竣工年 | 1988年1月 | ||
| 規模 | 地上7階 地下1階 | ||
| 空調 | 個別空調 | OAフロア | OAフロア |
| EV | 1 基 | トイレ | 男女別・室外 |
| 駐車場 | 無し | 24時間使用 | 使用可 |
| 耐震 | 新耐震基準 | 機械警備 | 有り |
募集概要
| 階数 |
5階
D 11名 (税込)
|
|---|---|
| 坪数 | 6.26坪 |
| 用途 | 事務所 , レンタルオフィス |
| 月額(賃料+共益費) (税別) | 302,500円 |
| 坪単価(賃料+共益費) (税別) | 48,323円/坪 |
| 賃料(税別) |
302,500円 (48,323円/坪) |
| 共益費(税別) | 賃料に含む |
| 敷金 | 3ヶ月 |
| 礼金 | |
| 償却 | 無し |
| 入居可能日 | 2025年11月 |
| 空室確認日 | ※ |
※また、レンタルオフィスの面積は仮の数値です。実際の面積とは異なりますのでご注意ください
その他空室情報
| 階数 | 坪数 |
賃料 (税別) |
共益費 (税別) |
敷金・保証金 | 入居日 | 詳細 |
お気に入り 追加 |
|---|---|---|---|---|---|---|---|
|
3階
B 4名 (税込)
|
3.78坪 |
176,000円 (46,561円/坪) |
賃料に含む | 3ヶ月 | 2025年11月 |
|
|
|
3階
C 6名 (税込)
|
3.78坪 |
196,000円 (51,852円/坪) |
賃料に含む | 3ヶ月 | 2025年11月 |
|
|
|
3階
A 11名 (税込)
|
7.62坪 |
385,000円 (50,525円/坪) |
賃料に含む | 3ヶ月 | 2025年11月 |
|
|
|
3階
1名用Room
|
0.01坪 |
54,545円 (5,454,500円/坪) |
賃料に含む | 無し | 2025年11月 |
|
|
|
3階
2名用Room
|
0.01坪 |
89,090円 (8,909,000円/坪) |
賃料に含む | 無し | 2025年11月 |
|
|
|
3階
3名用Room
|
0.01坪 |
101,818円 (10,181,800円/坪) |
賃料に含む | 無し | 2025年11月 |
|
|
|
3階
Q 1名 (税込)
|
0.83坪 | 相談 | 賃料に含む | 無し | 2025年11月 |
|
|
|
3階
M 2名 (税込)
|
0.83坪 | 相談 | 賃料に含む | 無し | 2025年11月 |
|
|
|
3階
I 9名 (税込)
|
4.81坪 |
253,000円 (52,599円/坪) |
賃料に含む | 3ヶ月 | 2025年11月 |
|
|
|
3階
H 12名 (税込)
|
6.56坪 |
323,000円 (49,238円/坪) |
賃料に含む | 3ヶ月 | 2025年11月 |
|
|
|
4階
Q 1名 (税込)
|
0.83坪 | 相談 | 賃料に含む | 無し | 2025年11月 |
|
|
|
4階
M 2名 (税込)
|
0.83坪 | 相談 | 賃料に含む | 無し | 2025年11月 |
|
|
|
4階
I 9名 (税込)
|
4.81坪 |
253,000円 (52,599円/坪) |
賃料に含む | 3ヶ月 | 2025年11月 |
|
|
|
4階
H 12名 (税込)
|
6.56坪 |
323,000円 (49,238円/坪) |
賃料に含む | 3ヶ月 | 2025年11月 |
|
|
|
4階
C 6名 (税込)
|
3.78坪 |
196,000円 (51,852円/坪) |
賃料に含む | 3ヶ月 | 2025年11月 |
|
|
|
4階
A 11名 (税込)
|
7.62坪 |
385,000円 (50,525円/坪) |
賃料に含む | 3ヶ月 | 2025年11月 |
|
|
|
4階
B 4名 (税込)
|
3.78坪 |
176,000円 (46,561円/坪) |
賃料に含む | 3ヶ月 | 2025年11月 |
|
|
|
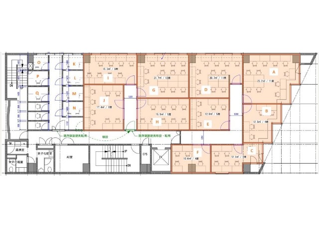
5階
C 6名 (税込)
|
3.78坪 |
195,800円 (51,799円/坪) |
賃料に含む | 3ヶ月 | 2025年11月 |
|
|
|
5階
A 11名 (税込)
|
7.62坪 |
385,000円 (50,525円/坪) |
賃料に含む | 3ヶ月 | 2025年11月 |
|
|
|
5階
O 1名 (税込)
|
0.83坪 | 相談 | 賃料に含む | 無し | 2025年11月 |
|
|
|
5階
K 2名 (税込)
|
0.83坪 | 相談 | 賃料に含む | 無し | 2025年11月 |
|
|
|
5階
F 4名 (税込)
|
3.21坪 |
154,000円 (47,975円/坪) |
賃料に含む | 3ヶ月 | 2025年11月 |
|
|
|
6階
C 6名 (税込)
|
3.78坪 |
195,800円 (51,799円/坪) |
賃料に含む | 3ヶ月 | 2025年11月 |
|
|
|
6階
A 11名 (税込)
|
7.62坪 |
385,000円 (50,525円/坪) |
賃料に含む | 3ヶ月 | 2025年11月 |
|
|
|
6階
H 8名 (税込)
|
5.26坪 |
242,000円 (46,008円/坪) |
賃料に含む | 3ヶ月 | 2025年11月 |
|
|
|
6階
G 12名 (税込)
|
6.56坪 |
323,400円 (49,299円/坪) |
賃料に含む | 3ヶ月 | 2025年11月 |
|
|
|
6階
F 4名 (税込)
|
3.21坪 |
154,000円 (47,975円/坪) |
賃料に含む | 3ヶ月 | 2025年11月 |
|
|










