町田センタービル
| 物件名 | 町田センタービル | ||
|---|---|---|---|
| 住所 | 東京都町田市原町田6-8-1 | ||
| 最寄駅 | |||
| 竣工年 | 2002年7月 | ||
| 規模 | 地上8階 地下2階 | ||
| 空調 | 無し | OAフロア | スケルトン |
| EV | 2 基 | トイレ | 男女別・室外 |
| 駐車場 | 24時間使用 | ||
| 耐震 | 新耐震基準 | 機械警備 | 無し |
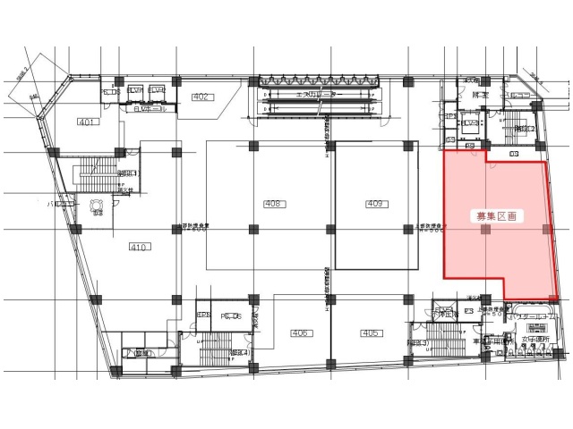
募集概要
| 階数 |
4階
404居抜き
|
|---|---|
| 坪数 | 51.85坪 |
| 用途 | 店舗 |
| 月額(賃料+共益費) (税別) | 1,037,000円 |
| 坪単価(賃料+共益費) (税別) | 20,000円/坪 |
| 賃料(税別) |
1,037,000円 (20,000円/坪) |
| 共益費(税別) | 無し |
| 敷金 | 12ヶ月 |
| 礼金 | 1ヶ月 |
| 償却 | 無し |
| 入居可能日 | 相談 |
| 空室確認日 | 2025/11/19 |









