西日本新聞吉塚スクエア
| 物件名 | 西日本新聞吉塚スクエア | ||
|---|---|---|---|
| 住所 | 福岡県福岡市博多区吉塚8-2-15 | ||
| 最寄駅 | |||
| 竣工年 | 2025年5月 | ||
| 規模 | 地上階 | ||
| 空調 | 個別空調 | OAフロア | OAフロア |
| EV | トイレ | 男女別・室外 | |
| 駐車場 | 有り | 24時間使用 | 使用可 |
| 耐震 | 新耐震基準 | 機械警備 | 有り |
募集概要
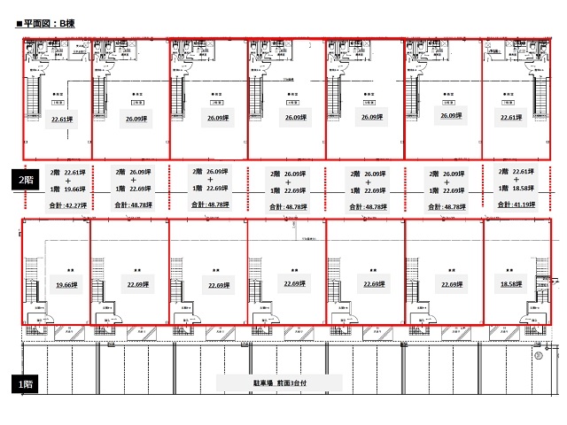
| 階数 |
1階
B棟 1号
|
|---|---|
| 坪数 | 42.27坪 |
| 用途 | 事務所 , 倉庫・工場 |
| 月額(賃料+共益費) (税別) | 422,700円 |
| 坪単価(賃料+共益費) (税別) | 10,000円/坪 |
| 賃料(税別) |
422,700円 (10,000円/坪) |
| 共益費(税別) | 賃料に含む |
| 敷金 | 8ヶ月 |
| 礼金 | 無し |
| 償却 | 無し |
| 入居可能日 | 即日 |
| 空室確認日 | 2025/10/03 |
その他空室情報
| 階数 | 坪数 |
賃料 (税別) |
共益費 (税別) |
敷金・保証金 | 入居日 | 詳細 |
お気に入り 追加 |
|---|---|---|---|---|---|---|---|
|
1階
A棟 2号
|
48.78坪 |
487,800円 (10,000円/坪) |
賃料に含む | 8ヶ月 | 即日 |
|
|
|
1階
B棟 4号
|
48.78坪 |
487,800円 (10,000円/坪) |
賃料に含む | 8ヶ月 | 即日 |
|
|
|
1階
B棟 5号申込有
|
48.78坪 |
487,800円 (10,000円/坪) |
賃料に含む | 8ヶ月 | 即日 |
|
|
|
1階
B棟 2号
|
48.78坪 |
487,800円 (10,000円/坪) |
賃料に含む | 8ヶ月 | 即日 |
|
|
|
1階
B棟 3号
|
48.78坪 |
487,800円 (10,000円/坪) |
賃料に含む | 8ヶ月 | 即日 |
|
|










