HACO JINGUMAE
| 物件名 | HACO JINGUMAE | ||
|---|---|---|---|
| 住所 | 東京都渋谷区神宮前2-26-8 | ||
| 最寄駅 | |||
| 竣工年 | 2025年2月 | ||
| 規模 | 地上4階 地下1階 | ||
| 空調 | 個別空調 / 無し | OAフロア | OAフロア / スケルトン |
| EV | トイレ | 男女共用・室内 | |
| 駐車場 | 無し | 24時間使用 | 調査中 |
| 耐震 | 新耐震基準 | 機械警備 | 無し |
募集概要
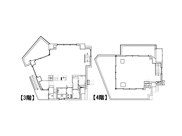
| 階数 |
3階
3F+4F
|
|---|---|
| 坪数 | 31.58坪 |
| 用途 | 事務所 , 店舗 |
| 月額(賃料+共益費) (税別) | 915,820円 |
| 坪単価(賃料+共益費) (税別) | 29,000円/坪 |
| 賃料(税別) |
915,820円 (29,000円/坪) |
| 共益費(税別) | 賃料に含む |
| 敷金 | 無し |
| 礼金 | 無し |
| 償却 | 無し |
| 入居可能日 | 即日 |
| 空室確認日 | 2025/11/19 |
その他空室情報
| 階数 | 坪数 |
賃料 (税別) |
共益費 (税別) |
敷金・保証金 | 入居日 | 詳細 |
お気に入り 追加 |
|---|---|---|---|---|---|---|---|
|
1階
B1F+1F
|
55.18坪 |
1,655,400円 (30,000円/坪) |
賃料に含む | 10ヶ月 | 即日 |
|
|









