太郎ベース
| 物件名 | 太郎ベース | ||
|---|---|---|---|
| 住所 | 千葉県船橋市本町5-2-20 | ||
| 最寄駅 | |||
| 竣工年 | 2025年3月 | ||
| 規模 | 地上5階 | ||
| 空調 | 無し | OAフロア | スケルトン |
| EV | 1 基 | トイレ | 無し |
| 駐車場 | 無し | 24時間使用 | 使用可 |
| 耐震 | 新耐震基準 | 機械警備 | 調査中 |
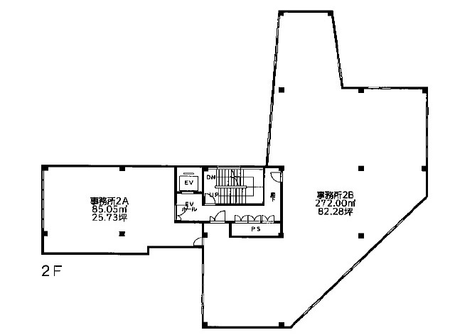
募集概要
| 階数 |
2階
b分割
|
|---|---|
| 坪数 | 51.5坪 |
| 用途 | 事務所 , 店舗 |
| 月額(賃料+共益費) (税別) | 1,133,000円 |
| 坪単価(賃料+共益費) (税別) | 22,000円/坪 |
| 賃料(税別) |
1,030,000円 (20,000円/坪) |
| 共益費(税別) |
103,000円 (2,000円/坪) |
| 敷金 | 6ヶ月 |
| 礼金 | 1ヶ月 |
| 償却 | 無し |
| 入居可能日 | 即日 |
| 空室確認日 | 2025/12/15 |









