エクセレント清萠
| 物件名 | エクセレント清萠 | ||
|---|---|---|---|
| 住所 | 大阪府門真市新橋町6-12 | ||
| 最寄駅 | |||
| 竣工年 | 1989年8月 | ||
| 規模 | 地上8階 | ||
| 空調 | 個別空調 | OAフロア | タイルカーペット |
| EV | 1 基 | トイレ | 男女別・室外 |
| 駐車場 | 有り | 24時間使用 | 使用可 |
| 耐震 | 新耐震基準 | 機械警備 | 調査中 |
募集概要
| 階数 |
3階
D
|
|---|---|
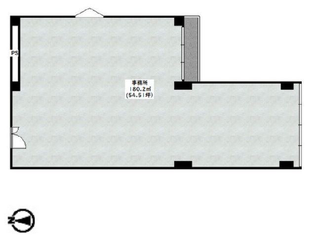
| 坪数 | 54.45坪 |
| 用途 | 事務所 , 店舗 |
| 月額(賃料+共益費) (税別) | 370,000円 |
| 坪単価(賃料+共益費) (税別) | 6,795円/坪 |
| 賃料(税別) |
350,000円 (6,428円/坪) |
| 共益費(税別) |
20,000円 (367円/坪) |
| 敷金 | 1ヶ月 |
| 礼金 | 2ヶ月 |
| 償却 | 無し |
| 入居可能日 | 即日 |
| 空室確認日 | 2026/01/29 |
その他空室情報
| 階数 | 坪数 |
賃料 (税別) |
共益費 (税別) |
敷金・保証金 | 入居日 | 詳細 |
お気に入り 追加 |
|---|---|---|---|---|---|---|---|
|
2階
D
|
54.45坪 |
350,000円 (6,428円/坪) |
20,000円 (367円/坪) |
1ヶ月 | 即日 |
|
|









