ゼクシオンビル
| 物件名 | ゼクシオンビル | ||
|---|---|---|---|
| 住所 | 福岡県福岡市博多区博多駅東3-13 | ||
| 最寄駅 | |||
| 竣工年 | 2026年4月 | ||
| 規模 | 地上9階 地上階 | ||
| 空調 | 個別空調 | OAフロア | OAフロア |
| EV | 3 基 | トイレ | 男女別・室外 |
| 駐車場 | 有り | 24時間使用 | 使用可 |
| 耐震 | 新耐震基準 | 機械警備 | 有り |
募集概要
| 階数 |
1階
申込有
|
|---|---|
| 坪数 | 97.12坪 |
| 用途 | 店舗 |
| 月額(賃料+共益費) (税別) | 相談 |
| 坪単価(賃料+共益費) (税別) | 相談 |
| 賃料(税別) | 相談 |
| 共益費(税別) | 相談 |
| 敷金 | 相談 |
| 礼金 | 無し |
| 償却 | 無し |
| 入居可能日 | 2026年5月 |
| 空室確認日 | 2025/11/06 |
その他空室情報
| 階数 | 坪数 |
賃料 (税別) |
共益費 (税別) |
敷金・保証金 | 入居日 | 詳細 |
お気に入り 追加 |
|---|---|---|---|---|---|---|---|
|
1階
102 申込有
|
32.6坪 | 相談 | 相談 | 相談 | 2026年5月 |
|
|
|
1階
102・3 申込有
|
64.28坪 | 相談 | 相談 | 相談 | 2026年5月 |
|
|
|
1階
101 申込有
|
32.84坪 | 相談 | 相談 | 相談 | 2026年5月 |
|
|
|
1階
103 申込有
|
31.68坪 | 相談 | 相談 | 相談 | 2026年5月 |
|
|
|
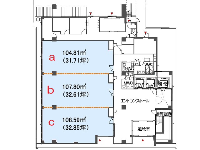
3階
ABC
|
97.71坪 | 相談 | 相談 | 相談 | 2026年5月 |
|
|
|
3階
AB
|
65.84坪 | 相談 | 相談 | 相談 | 2026年5月 |
|
|
|
3階
A
|
33.52坪 | 相談 | 相談 | 相談 | 2026年5月 |
|
|
|
3階
C
|
31.87坪 | 相談 | 相談 | 相談 | 2026年5月 |
|
|
|
3階
B
|
32.32坪 | 相談 | 相談 | 相談 | 2026年5月 |
|
|
|
3階
申込有
|
149.64坪 | 相談 | 相談 | 相談 | 2026年5月 |
|
|
|
3階
D
|
51.93坪 | 相談 | 相談 | 相談 | 2026年5月 |
|
|
|
4階
申込有
|
149.64坪 | 相談 | 相談 | 相談 | 2026年5月 |
|
|
|
5階
申込有
|
149.64坪 | 相談 | 相談 | 相談 | 2026年5月 |
|
|
|
6階
申込有
|
149.64坪 | 相談 | 相談 | 相談 | 2026年5月 |
|
|
|
7階
申込有
|
149.64坪 | 相談 | 相談 | 相談 | 2026年5月 |
|
|
|
8階
D 申込有
|
51.93坪 | 相談 | 相談 | 相談 |
|
|
|
|
8階
C
|
31.87坪 | 相談 | 賃料に含む | 相談 | 2026年5月 |
|
|










