KAMIHACHI X
| 物件名 | KAMIHACHI X | ||
|---|---|---|---|
| 住所 | 広島県広島市中区基町80番1、2、3、4 | ||
| 最寄駅 | |||
| 竣工年 | 2027年4月 | ||
| 規模 | 地上31階 地下1階 | ||
| 空調 | 個別空調 | OAフロア | OAフロア |
| EV | 8 基 | トイレ | 男女別・室外 |
| 駐車場 | 有り | 24時間使用 | 使用可 |
| 耐震 | 新耐震基準 | 機械警備 | 有り |
募集概要
| 階数 |
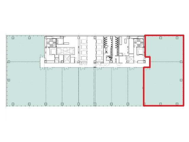
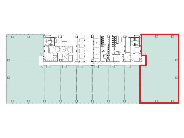
8階
1・2
|
|---|---|
| 坪数 | 154.48坪 |
| 用途 | 事務所 |
| 月額(賃料+共益費) (税別) | 相談 |
| 坪単価(賃料+共益費) (税別) | 相談 |
| 賃料(税別) | 相談 |
| 共益費(税別) | 賃料に含む |
| 敷金 | 12ヶ月 |
| 礼金 | 無し |
| 償却 | 無し |
| 入居可能日 | 2027年5月 |
| 空室確認日 | ※ |
※当物件は特殊物件のため、最新の募集状況に関しましてはお問合せ頂けますようお願い致します。
その他空室情報
| 階数 | 坪数 |
賃料 (税別) |
共益費 (税別) |
敷金・保証金 | 入居日 | 詳細 |
お気に入り 追加 |
|---|---|---|---|---|---|---|---|
|
7階
8
|
36.8坪 | 相談 | 賃料に含む | 12ヶ月 | 2027年5月 |
|
|
|
7階
4-7
|
147.2坪 | 相談 | 賃料に含む | 12ヶ月 | 2027年5月 |
|
|
|
7階
1-3
|
191.28坪 | 相談 | 賃料に含む | 12ヶ月 | 2027年5月 |
|
|
|
8階
8・9
|
135.15坪 | 相談 | 賃料に含む | 12ヶ月 | 2027年5月 |
|
|
|
8階
3-5
|
110.4坪 | 相談 | 賃料に含む | 12ヶ月 | 2027年5月 |
|
|
|
8階
6・7
|
73.6坪 | 相談 | 賃料に含む | 12ヶ月 | 2027年5月 |
|
|
| 9階 | 529.76坪 | 相談 | 賃料に含む | 12ヶ月 | 2027年5月 |
|
|
| 15階 | 529.76坪 | 相談 | 賃料に含む | 12ヶ月 | 2027年5月 |
|
|
| 16階 | 529.76坪 | 相談 | 賃料に含む | 12ヶ月 | 2027年5月 |
|
|









