B&Lビルディング
| 物件名 | B&Lビルディング | ||
|---|---|---|---|
| 住所 | 兵庫県神戸市中央区八幡通4-1-14 | ||
| 最寄駅 | |||
| 竣工年 | 1998年3月 | ||
| 規模 | 地上5階 | ||
| 空調 | 個別空調 | OAフロア | タイルカーペット / Pタイル |
| EV | 1 基 | トイレ | 男女別・室外 |
| 駐車場 | 無し | 24時間使用 | 使用可 |
| 耐震 | 新耐震基準 | 機械警備 | 有り |
募集概要
| 階数 |
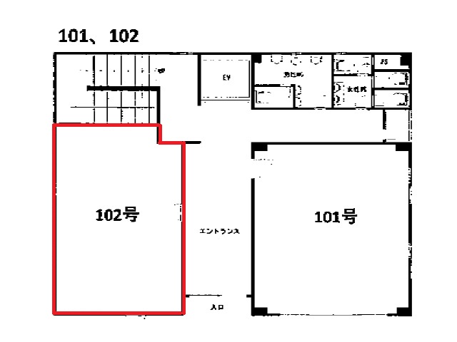
1階
102
|
|---|---|
| 坪数 | 10.89坪 |
| 用途 | 店舗 |
| 月額(賃料+共益費) (税別) | 272,250円 |
| 坪単価(賃料+共益費) (税別) | 25,000円/坪 |
| 賃料(税別) |
272,250円 (25,000円/坪) |
| 共益費(税別) | 賃料に含む |
| 敷金 | 6ヶ月 |
| 礼金 | 無し |
| 償却 | 無し |
| 入居可能日 | 相談 |
| 空室確認日 | 2026/01/06 |
その他空室情報
| 階数 | 坪数 |
賃料 (税別) |
共益費 (税別) |
敷金・保証金 | 入居日 | 詳細 |
お気に入り 追加 |
|---|---|---|---|---|---|---|---|
|
1階
101
|
14.21坪 |
355,250円 (25,000円/坪) |
賃料に含む | 6ヶ月 | 相談 |
|
|









