埼玉グランドホテル本庄
| 物件名 | 埼玉グランドホテル本庄 | ||
|---|---|---|---|
| 住所 | 埼玉県本庄市駅南2-2-1 | ||
| 最寄駅 | |||
| 竣工年 | 1983年8月 | ||
| 規模 | 地上12階 地下1階 | ||
| 空調 | OAフロア | ||
| EV | トイレ | 男女別・室外 | |
| 駐車場 | 有り | 24時間使用 | |
| 耐震 | 新耐震基準 | 機械警備 | |
募集概要
| 階数 |
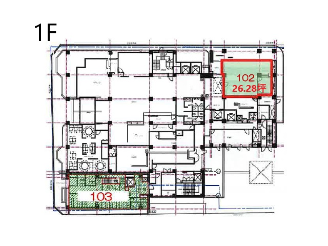
1階
102
|
|---|---|
| 坪数 | 26.28坪 |
| 用途 | 事務所 , 店舗 |
| 月額(賃料+共益費) (税別) | 157,680円 |
| 坪単価(賃料+共益費) (税別) | 6,000円/坪 |
| 賃料(税別) |
157,680円 (6,000円/坪) |
| 共益費(税別) | 賃料に含む |
| 敷金 | 4ヶ月 |
| 礼金 | 無し |
| 償却 | 無し |
| 入居可能日 | 2025年12月 |
| 空室確認日 | 2025/11/20 |
その他空室情報
| 階数 | 坪数 |
賃料 (税別) |
共益費 (税別) |
敷金・保証金 | 入居日 | 詳細 |
お気に入り 追加 |
|---|---|---|---|---|---|---|---|
|
1階
103~303居抜き
|
101.13坪 |
500,000円 (4,944円/坪) |
賃料に含む | 6ヶ月 | 相談 |
|
|
|
1階
103居抜き
|
36.01坪 |
360,100円 (10,000円/坪) |
賃料に含む | 6ヶ月 | 相談 |
|
|









