The Link Sapporo

物件名 The Link Sapporo
住所 北海道札幌市北区北六条西1-1-3
最寄駅
竣工年 2023年8月
規模 地上13階 地下1階
空調 個別空調 OAフロア OAフロア
EV 5 基 トイレ 男女別・室外
駐車場 有り 24時間使用 使用可
耐震 新耐震基準 機械警備 有り

募集概要

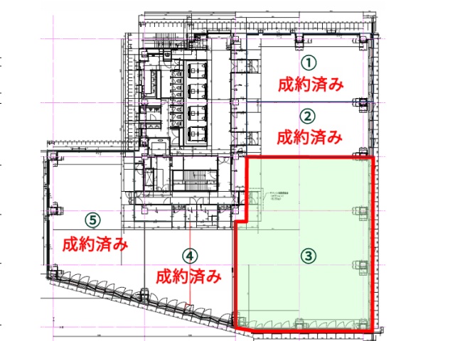
階数 5階
坪数 123.84坪
用途 事務所
月額(賃料+共益費) (税別) 相談
坪単価(賃料+共益費) (税別) 相談
賃料(税別) 相談
共益費(税別) 賃料に含む
敷金 12ヶ月
礼金 無し
償却
入居可能日 即日
空室確認日 2025/10/17

物件詳細PDF

  • お客様用
  • 業者様用

お問い合わせはこちら

その他空室情報

階数 坪数 賃料
(税別)
共益費
(税別)
敷金・保証金 入居日 詳細 お気に入り
追加
3階 322.59坪 相談 賃料に含む 12ヶ月 即日 お問合せ お気に入り追加
4階 322.59坪 相談 賃料に含む 12ヶ月 即日 お問合せ お気に入り追加
10階 116.42坪 相談 相談 相談 即日 お問合せ お気に入り追加

更に詳細な資料情報をご希望の方はこちら

がついているものは必須項目です
物件名 The Link Sapporo 5階 ③ 123.84坪
物件住所 北海道札幌市北区北六条西1-1-3
■お問合せ内容
お問合せ内容
備考欄
■ご希望条件について教えてください
立地
ご希望の面積 ※1㎡=0.3025坪
ご希望の面積がお決まりの方は単位を選んでからご記入ください
ご予算感 ※共益費込みの月額賃料(税別)
ご予算感がお決まりの方は単位を選んでからご記入ください
ご入居希望時期
その他のご質問・ご要望など
■物件探しの目的についてお教えください
用途
業態(店舗選択のみ)
その他用途
目的
その他目的
■物件探しの目的についてお教えください
貴社名 ご担当者名  
電話番号
メールアドレス メールアドレス
(再入力)
郵便番号
都道府県/市区町村/番地
建物名/階数
確認画面へ進む

同エリアの物件

  • MipLa札幌駅前 北海道札幌市北区北7条西5-1(地番) 札幌

  • J1札幌北口ビル 北海道札幌市北区北6条西4-2-7 札幌

  • 8・3スクエア北ビル 北海道札幌市北区北8条西3-32 札幌

  • SE札幌ビル 北海道札幌市北区北7条西1-1-2 札幌

Copyright(C) Quick Consulting Co.,LTD. All right reserved.