Peles緑が丘
| 物件名 | Peles緑が丘 | ||
|---|---|---|---|
| 住所 | 千葉県八千代市緑が丘西4-6-3 | ||
| 最寄駅 | |||
| 竣工年 | 2018年3月 | ||
| 規模 | 地上6階 | ||
| 空調 | OAフロア | ||
| EV | トイレ | 調査中 | |
| 駐車場 | 有り | 24時間使用 | 使用可 |
| 耐震 | 新耐震基準 | 機械警備 | 調査中 |
募集概要
| 階数 |
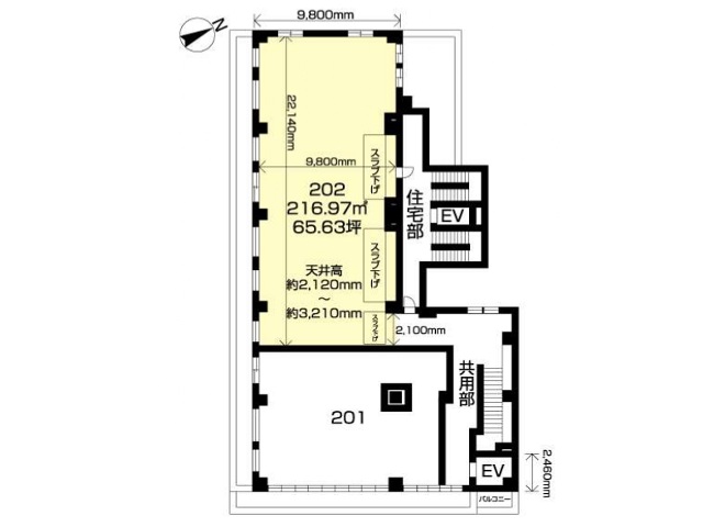
2階
0202
|
|---|---|
| 坪数 | 65.63坪 |
| 用途 | 事務所 , 店舗 |
| 月額(賃料+共益費) (税別) | 641,000円 |
| 坪単価(賃料+共益費) (税別) | 9,767円/坪 |
| 賃料(税別) |
610,000円 (9,295円/坪) |
| 共益費(税別) |
31,000円 (472円/坪) |
| 敷金 | 6ヶ月 |
| 礼金 | 1.5ヶ月 |
| 償却 | 要確認 |
| 入居可能日 | 即日 |
| 空室確認日 | 2025/11/18 |
その他空室情報
| 階数 | 坪数 |
賃料 (税別) |
共益費 (税別) |
敷金・保証金 | 入居日 | 詳細 |
お気に入り 追加 |
|---|---|---|---|---|---|---|---|
|
1階
0001
|
93.7坪 |
937,000円 (10,000円/坪) |
50,000円 (534円/坪) |
6ヶ月 | 即日 |
|
|









