サンローゼビル
| 物件名 | サンローゼビル | ||
|---|---|---|---|
| 住所 | 奈良県奈良市西大寺栄町3-23 | ||
| 最寄駅 | |||
| 竣工年 | 1987年10月 | ||
| 規模 | 地上5階 | ||
| 空調 | 個別空調 | OAフロア | |
| EV | 2 基 | トイレ | 男女別・室外 |
| 駐車場 | 有り | 24時間使用 | |
| 耐震 | 新耐震基準 | 機械警備 | 有り |
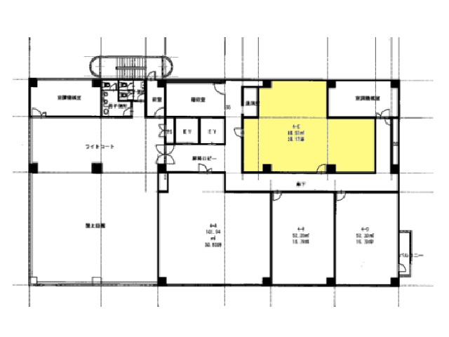
募集概要
| 階数 |
4階
E
|
|---|---|
| 坪数 | 26.16坪 |
| 用途 | 事務所 , 店舗 |
| 月額(賃料+共益費) (税別) | 287,870円 |
| 坪単価(賃料+共益費) (税別) | 11,004円/坪 |
| 賃料(税別) |
287,870円 (11,004円/坪) |
| 共益費(税別) | 賃料に含む |
| 敷金 | 2,000,000円 |
| 礼金 | 無し |
| 償却 | スライド |
| 入居可能日 | 2026年3月 |
| 空室確認日 | 2025/10/30 |









