N8
| 物件名 | N8 | ||
|---|---|---|---|
| 住所 | 東京都立川市曙町2-6-10 | ||
| 最寄駅 | |||
| 竣工年 | 1973年3月 | ||
| 規模 | 地上8階 地下1階 | ||
| 空調 | OAフロア | ||
| EV | 2 基 | トイレ | 男女共用・室内 |
| 駐車場 | 無し | 24時間使用 | |
| 耐震 | 耐震補強済 | 機械警備 | 調査中 |
募集概要
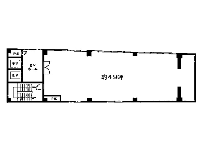
| 階数 |
5階
居抜
|
|---|---|
| 坪数 | 49坪 |
| 用途 | 事務所 , 店舗 |
| 月額(賃料+共益費) (税別) | 1,320,000円 |
| 坪単価(賃料+共益費) (税別) | 26,939円/坪 |
| 賃料(税別) |
1,200,000円 (24,490円/坪) |
| 共益費(税別) |
120,000円 (2,449円/坪) |
| 敷金 | 10ヶ月 |
| 礼金 | 1ヶ月 |
| 償却 | 1ヶ月 |
| 入居可能日 | 即日 |
| 空室確認日 | 2025/12/05 |
その他空室情報
| 階数 | 坪数 |
賃料 (税別) |
共益費 (税別) |
敷金・保証金 | 入居日 | 詳細 |
お気に入り 追加 |
|---|---|---|---|---|---|---|---|
| 7階 | 48.96坪 |
1,000,000円 (20,425円/坪) |
120,000円 (2,451円/坪) |
10ヶ月 | 即日 |
|
|









