HOYO新虎ビル(HOYO ShinTora Bldg.) 4階 26坪
現在、こちらのお部屋は募集しておりません。
空室情報は常に更新されています。最新の空室状況はお電話にてお問い合わせください。
こちらのビルには他に空室がございます
このビルの空室を見るHOYO新虎ビル(HOYO ShinTora Bldg.)
| 物件名 | HOYO新虎ビル(HOYO ShinTora Bldg.) | ||
|---|---|---|---|
| 住所 | 東京都港区西新橋3-5-9 | ||
| 最寄駅 | |||
| 竣工年 | 2023年1月 | ||
| 規模 | 地上10階 | ||
| 空調 | 個別空調 / 無し | OAフロア | OAフロア / スケルトン |
| EV | 1 基 | トイレ | 男女別・室内 |
| 駐車場 | 無し | 24時間使用 | 使用可 |
| 耐震 | 新耐震基準 | 機械警備 | 有り |
募集概要
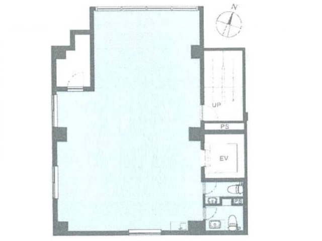
| 階数 | 4階 |
|---|---|
| 坪数 | 26坪 |
| 用途 | 事務所 |
その他空室情報
| 階数 | 坪数 |
賃料 (税別) |
共益費 (税別) |
敷金・保証金 | 入居日 | 詳細 |
お気に入り 追加 |
|---|---|---|---|---|---|---|---|
| 6階 | 26坪 |
650,000円 (25,000円/坪) |
賃料に含む | 4ヶ月 | 2026年5月 |
|
|









