MC南柏ビル
| 物件名 | MC南柏ビル | ||
|---|---|---|---|
| 住所 | 千葉県柏市南柏1-5-2 | ||
| 最寄駅 | |||
| 竣工年 | 1990年11月 | ||
| 規模 | 地上4階 地下1階 | ||
| 空調 | OAフロア | スケルトン | |
| EV | 1 基 | トイレ | 無し |
| 駐車場 | 無し | 24時間使用 | 使用可 |
| 耐震 | 新耐震基準 | 機械警備 | 調査中 |
募集概要
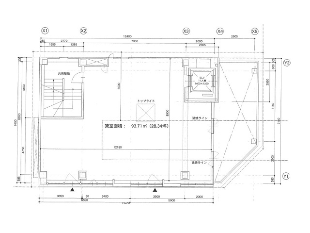
| 階数 | 4階 |
|---|---|
| 坪数 | 28.34坪 |
| 用途 | 店舗 |
| 月額(賃料+共益費) (税別) | 247,728円 |
| 坪単価(賃料+共益費) (税別) | 8,741円/坪 |
| 賃料(税別) |
187,728円 (6,624円/坪) |
| 共益費(税別) |
60,000円 (2,117円/坪) |
| 敷金 | 1,000,000円 |
| 礼金 | 無し |
| 償却 | 1ヶ月(解約時) |
| 入居可能日 | 相談 |
| 空室確認日 | 2025/11/19 |
その他空室情報
| 階数 | 坪数 |
賃料 (税別) |
共益費 (税別) |
敷金・保証金 | 入居日 | 詳細 |
お気に入り 追加 |
|---|---|---|---|---|---|---|---|
|
1階
B1-1F
|
64.34坪 |
400,000円 (6,217円/坪) |
10,000円 (155円/坪) |
10ヶ月 | 即日 |
|
|
| 2階 | 27.83坪 |
222,728円 (8,003円/坪) |
60,000円 (2,156円/坪) |
1,000,000円 | 相談 |
|
|









