南熊本511ビルディング
| 物件名 | 南熊本511ビルディング | ||
|---|---|---|---|
| 住所 | 熊本県熊本市南熊本5-1-1 | ||
| 最寄駅 | |||
| 竣工年 | 1984年7月 | ||
| 規模 | 地上8階 地上階 | ||
| 空調 | 個別空調 | OAフロア | OAフロア / OAフロア相談可 / タイルカーペット | 
| EV | 2 基 | トイレ | 男女別・室外 | 
| 駐車場 | 有り | 24時間使用 | 使用可 | 
| 耐震 | 新耐震基準 | 機械警備 | 有り | 
募集概要
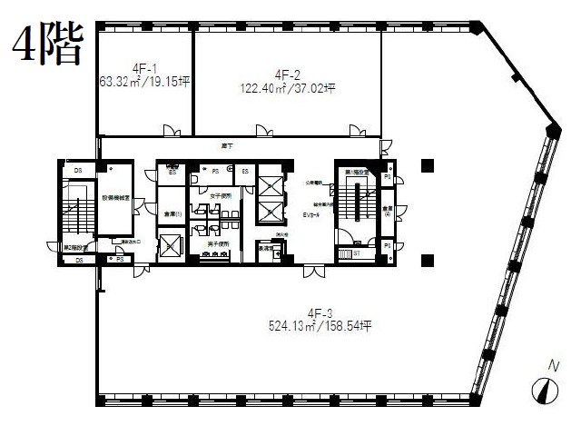
| 階数 | 4階 3 | 
|---|---|
| 坪数 | 158.54坪 | 
| 用途 | 事務所 | 
| 月額(賃料+共益費) (税別) | 1,347,590円 | 
| 坪単価(賃料+共益費) (税別) | 8,500円/坪 | 
| 賃料(税別) | 1,347,590円 (8,500円/坪) | 
| 共益費(税別) | 賃料に含む | 
| 敷金 | 6ヶ月 | 
| 礼金 | 無し | 
| 償却 | 無し | 
| 入居可能日 | 即日 | 
| 空室確認日 | 2025/10/07 | 
その他空室情報
| 階数 | 坪数 | 賃料 (税別) | 共益費 (税別) | 敷金・保証金 | 入居日 | 詳細 | お気に入り 追加 | 
|---|---|---|---|---|---|---|---|
| B1階 2 | 20.92坪 | 62,760円 (3,000円/坪) | 賃料に含む | 2ヶ月 | 即日 |   |   | 
| B1階 4 | 35.5坪 | 106,500円 (3,000円/坪) | 賃料に含む | 2ヶ月 | 2025年12月 |   |   | 
| 2階 4 | 52.39坪 | 471,510円 (9,000円/坪) | 賃料に含む | 6ヶ月 | 2025年12月 |   |   | 
| 5階 5検討有 | 38.55坪 | 346,950円 (9,000円/坪) | 賃料に含む | 6ヶ月 | 相談 |   |   | 
| 5階 6 | 28.78坪 | 259,020円 (9,000円/坪) | 賃料に含む | 6ヶ月 | 即日 |   |   | 




 
					
 
							 
							 
							 
							 
							 
							 
							 
							

 
						 
											
 
											 
											 
											 エリア検索
					エリア検索
				 
                



