名駅太閤通口ビル
| 物件名 | 名駅太閤通口ビル | ||
|---|---|---|---|
| 住所 | 愛知県名古屋市中村区椿町15-27 | ||
| 最寄駅 | |||
| 竣工年 | 2021年8月 | ||
| 規模 | 地上9階 地下1階 | ||
| 空調 | OAフロア | スケルトン | |
| EV | 2 基 | トイレ | 男女別・室外 |
| 駐車場 | 無し | 24時間使用 | 使用可 |
| 耐震 | 新耐震基準 | 機械警備 | |
募集概要
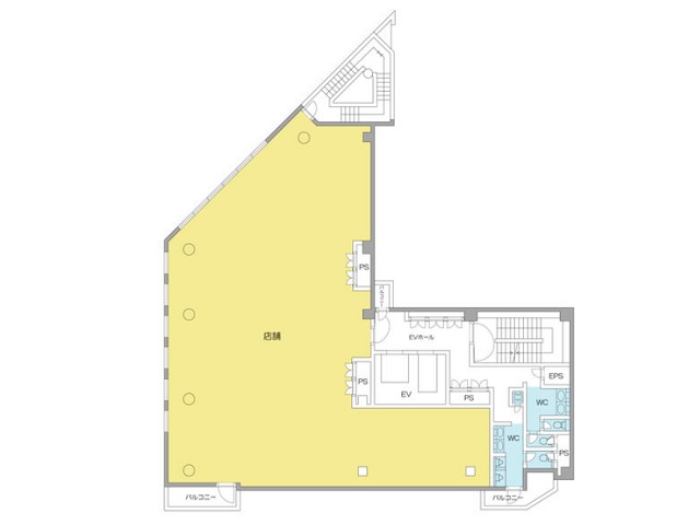
| 階数 | 8階 |
|---|---|
| 坪数 | 82.04坪 |
| 用途 | 事務所 , 店舗 |
| 月額(賃料+共益費) (税別) | 2,732,819円 |
| 坪単価(賃料+共益費) (税別) | 33,311円/坪 |
| 賃料(税別) |
2,051,000円 (25,000円/坪) |
| 共益費(税別) |
681,819円 (8,311円/坪) |
| 敷金 | 10ヶ月 |
| 礼金 | 無し |
| 償却 | 55% |
| 入居可能日 | 即日 |
| 空室確認日 | 2025/11/28 |









