オオハシヒルズ
| 物件名 | オオハシヒルズ | ||
|---|---|---|---|
| 住所 | 青森県八戸市大字十三日町25 | ||
| 最寄駅 | |||
| 竣工年 | 1982年8月 | ||
| 規模 | 地上5階 地下1階 | ||
| 空調 | 個別空調 | OAフロア | その他 |
| EV | 1 基 | トイレ | 男女別・室外 |
| 駐車場 | 無し | 24時間使用 | 使用可 |
| 耐震 | 新耐震基準 | 機械警備 | 有り |
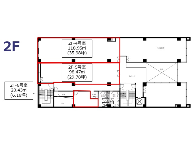
募集概要
| 階数 |
2階
4
|
|---|---|
| 坪数 | 35.98坪 |
| 用途 | 事務所 |
| 月額(賃料+共益費) (税別) | 251,860円 |
| 坪単価(賃料+共益費) (税別) | 7,000円/坪 |
| 賃料(税別) |
251,860円 (7,000円/坪) |
| 共益費(税別) | 賃料に含む |
| 敷金 | 3ヶ月 |
| 礼金 | 無し |
| 償却 | 無し |
| 入居可能日 | 相談 |
| 空室確認日 | 2026/03/18 |
その他空室情報
| 階数 | 坪数 |
賃料 (税別) |
共益費 (税別) |
敷金・保証金 | 入居日 | 詳細 |
お気に入り 追加 |
|---|---|---|---|---|---|---|---|
|
B1階
居抜き
|
99.94坪 |
499,700円 (5,000円/坪) |
賃料に含む | 6ヶ月 | 相談 |
|
|
|
3階
3
|
50.01坪 |
325,065円 (6,500円/坪) |
賃料に含む | 6ヶ月 | 即日 |
|
|
|
4階
5
|
28.06坪 |
210,450円 (7,500円/坪) |
賃料に含む | 3ヶ月 | 即日 |
|
|









