第2BAJビル
| 物件名 | 第2BAJビル | ||
|---|---|---|---|
| 住所 | 東京都板橋区常盤台1-38-9 | ||
| 最寄駅 | |||
| 竣工年 | 1970年7月 | ||
| 規模 | 地上4階 地下1階 | ||
| 空調 | OAフロア | OAフロア | |
| EV | トイレ | 男女別・室内 | |
| 駐車場 | 無し | 24時間使用 | 調査中 |
| 耐震 | 旧耐震基準 | 機械警備 | 調査中 |
募集概要
| 階数 |
3階
302
|
|---|---|
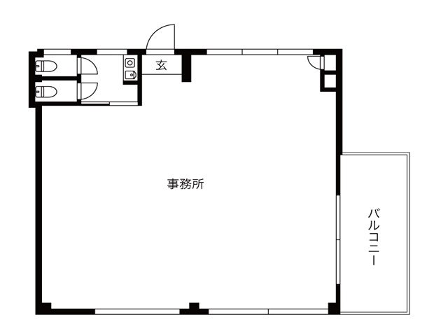
| 坪数 | 29.22坪 |
| 用途 | 事務所 |
| 月額(賃料+共益費) (税別) | 260,000円 |
| 坪単価(賃料+共益費) (税別) | 8,898円/坪 |
| 賃料(税別) |
230,000円 (7,871円/坪) |
| 共益費(税別) |
30,000円 (1,027円/坪) |
| 敷金 | 3ヶ月 |
| 礼金 | 1ヶ月 |
| 償却 | 1ヶ月 |
| 入居可能日 | 即日 |
| 空室確認日 | 2026/01/13 |









