三基ビル
| 物件名 | 三基ビル | ||
|---|---|---|---|
| 住所 | 千葉県千葉市美浜区高洲1-21-1 | ||
| 最寄駅 | |||
| 竣工年 | 1989年2月 | ||
| 規模 | 地上5階 | ||
| 空調 | 個別空調 | OAフロア | スケルトン |
| EV | トイレ | 無し | |
| 駐車場 | 有り | 24時間使用 | 使用可 |
| 耐震 | 新耐震基準 | 機械警備 | 有り |
募集概要
| 階数 |
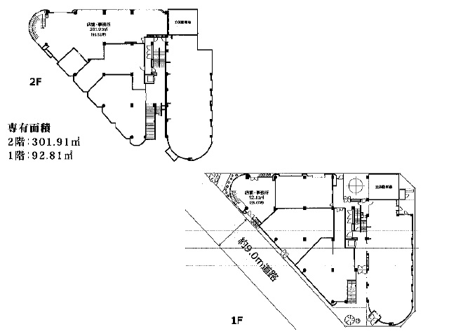
1階
1-2F
|
|---|---|
| 坪数 | 119.4坪 |
| 用途 | 事務所 , 店舗 |
| 月額(賃料+共益費) (税別) | 相談 |
| 坪単価(賃料+共益費) (税別) | 相談 |
| 賃料(税別) | 相談 |
| 共益費(税別) | 相談 |
| 敷金 | 6ヶ月 |
| 礼金 | 1ヶ月 |
| 償却 | 要確認 |
| 入居可能日 | 相談 |
| 空室確認日 | 2025/11/04 |









