九勧末広通りビル
| 物件名 | 九勧末広通りビル | ||
|---|---|---|---|
| 住所 | 福岡県福岡市博多区博多駅前3-8-10 | ||
| 最寄駅 | |||
| 竣工年 | 2023年4月 | ||
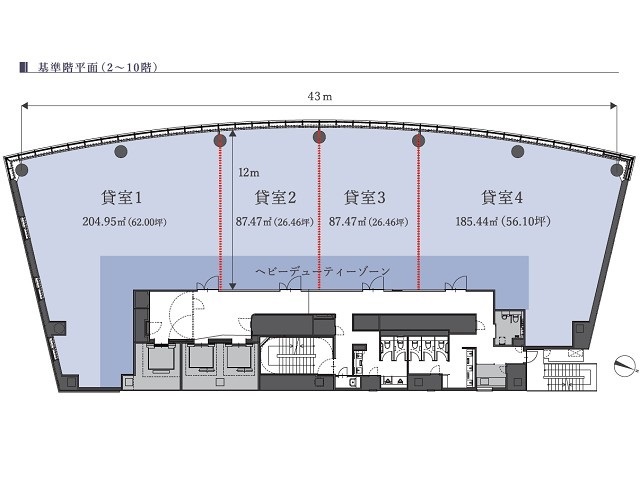
| 規模 | 地上11階 | ||
| 空調 | 個別空調 | OAフロア | OAフロア |
| EV | 3 基 | トイレ | 男女別・室外 |
| 駐車場 | 無し | 24時間使用 | 使用可 |
| 耐震 | 新耐震基準 | 機械警備 | 有り |
募集概要
| 階数 |
3階
貸室2
|
|---|---|
| 坪数 | 26.46坪 |
| 用途 | 事務所 |
| 月額(賃料+共益費) (税別) | 661,500円 |
| 坪単価(賃料+共益費) (税別) | 25,000円/坪 |
| 賃料(税別) |
568,890円 (21,500円/坪) |
| 共益費(税別) |
92,610円 (3,500円/坪) |
| 敷金 | 12ヶ月 |
| 礼金 | 無し |
| 償却 | |
| 入居可能日 | 2026年3月 |
| 空室確認日 | 2026/01/30 |










