港南台ニューフラワーマンション
| 物件名 | 港南台ニューフラワーマンション | ||
|---|---|---|---|
| 住所 | 神奈川県横浜市港南区港南台4-1-3 | ||
| 最寄駅 | |||
| 竣工年 | 1976年5月 | ||
| 規模 | 地上8階 | ||
| 空調 | 無し | OAフロア | スケルトン |
| EV | トイレ | 無し | |
| 駐車場 | 無し | 24時間使用 | 使用可 |
| 耐震 | 旧耐震基準 | 機械警備 | 無し |
募集概要
| 階数 |
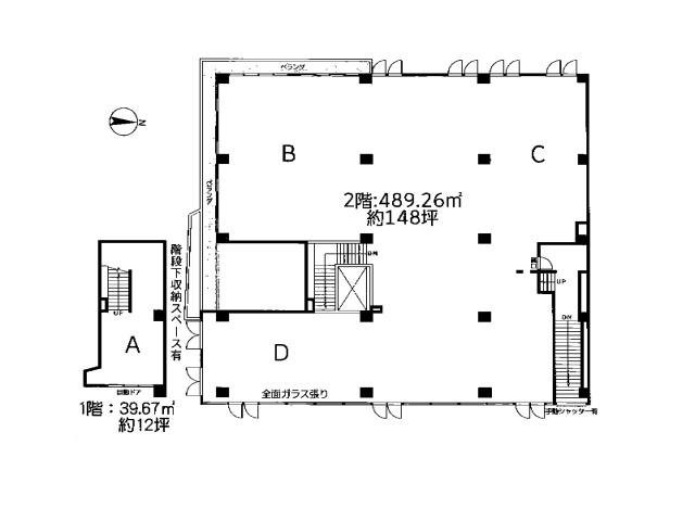
1階
1-2F
|
|---|---|
| 坪数 | 160坪 |
| 用途 | 店舗 |
| 月額(賃料+共益費) (税別) | 1,300,000円 |
| 坪単価(賃料+共益費) (税別) | 8,125円/坪 |
| 賃料(税別) |
1,300,000円 (8,125円/坪) |
| 共益費(税別) | 無し |
| 敷金 | 5ヶ月 |
| 礼金 | 1ヶ月 |
| 償却 | 10% |
| 入居可能日 | 即日 |
| 空室確認日 | 2026/01/21 |









