千葉銀座ビル
| 物件名 | 千葉銀座ビル | ||
|---|---|---|---|
| 住所 | 千葉県千葉市中央区中央3-4-10 | ||
| 最寄駅 | |||
| 竣工年 | 1965年1月 | ||
| 規模 | 地上8階 | ||
| 空調 | 個別空調 | OAフロア | |
| EV | 1 基 | トイレ | 男女別・室内 |
| 駐車場 | 24時間使用 | 使用可 | |
| 耐震 | 旧耐震基準 | 機械警備 | 調査中 |
募集概要
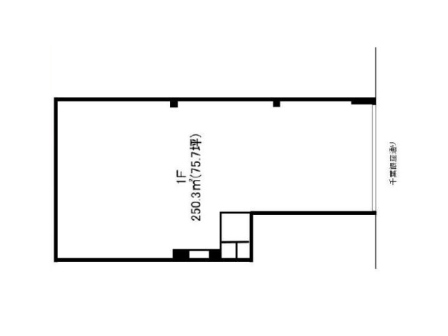
| 階数 | 1階 |
|---|---|
| 坪数 | 75.71坪 |
| 用途 | 事務所 , 店舗 |
| 月額(賃料+共益費) (税別) | 1,020,000円 |
| 坪単価(賃料+共益費) (税別) | 13,472円/坪 |
| 賃料(税別) |
984,000円 (12,997円/坪) |
| 共益費(税別) |
36,000円 (475円/坪) |
| 敷金 | 6ヶ月 |
| 礼金 | 1ヶ月 |
| 償却 | 1ヶ月 |
| 入居可能日 | 即日 |
| 空室確認日 | 2026/04/09 |









